EasyManua.ls Logo

Datum Systems PSM-500 - Page 29

Datum Systems PSM-500
124 pages
Print Icon
To Next Page IconTo Next Page
To Next Page IconTo Next Page
To Previous Page IconTo Previous Page
To Previous Page IconTo Previous Page
Loading...
PSM-500/500L/500LT SCPC Satellite Modem Description
PSM-500/500L/500LT - Rev. 0.91
Page 1-19
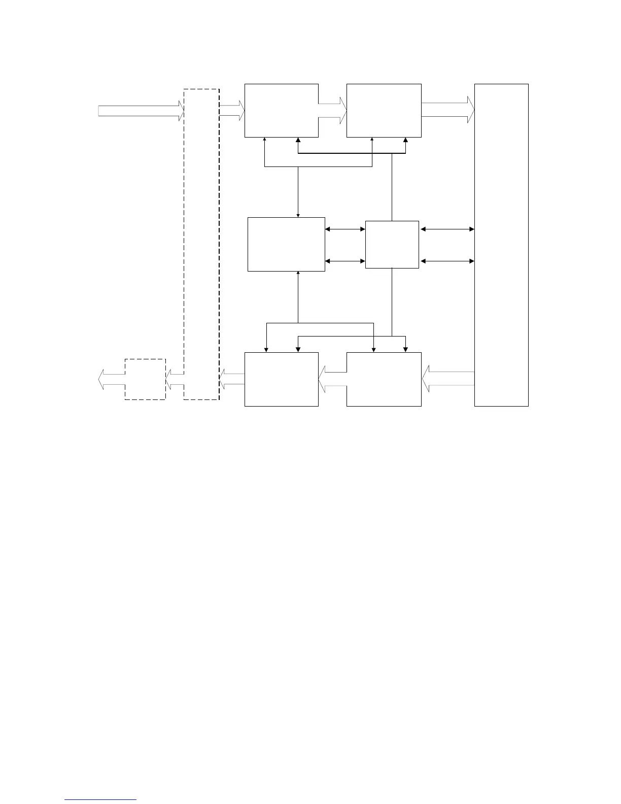
Transmit Reed-Solomon
Block Encoder &
Synchronous Scrambler
Processor
Transmit
Terrestrial Data
Channel
Receive
Terrestrial Data
Channel
Transmit
Data Channel
Receive Data
Channel
Control
XMT
Clock and Frame
Generation
RCV
Control
Clock
Clock
Main Modem
Assembly
Clocks
Reed-Solomon Codec Simplified Block Diagram
Transmit Reed-Solomon
Block Interleaver
Receive Reed-Solomon
Block Decoder &
Synchronous
Descrambler
Receive Reed-Solomon
Block De-Interleaver
FIFO From
Main Modem
IBS
Multiplex
Option
The Reed-Solomon modes shown available below can be selected from the front panel or remote
control. The CT220,200 mode is a special compatibility mode and is automatically set by certain CT
FEC modes, for example when Viterbi, Rate ¾ is selected when in 16QAM mode. It can be over-
ridden by choice from the Reed-Solomon parameter.

Table of Contents

Related product manuals