EasyManua.ls Logo

Davey StarFlo DSF150CE - Raccordement de la Tuyauterie

Davey StarFlo DSF150CE
84 pages
Print Icon
To Next Page IconTo Next Page
To Next Page IconTo Next Page
To Previous Page IconTo Previous Page
To Previous Page IconTo Previous Page
Loading...
41
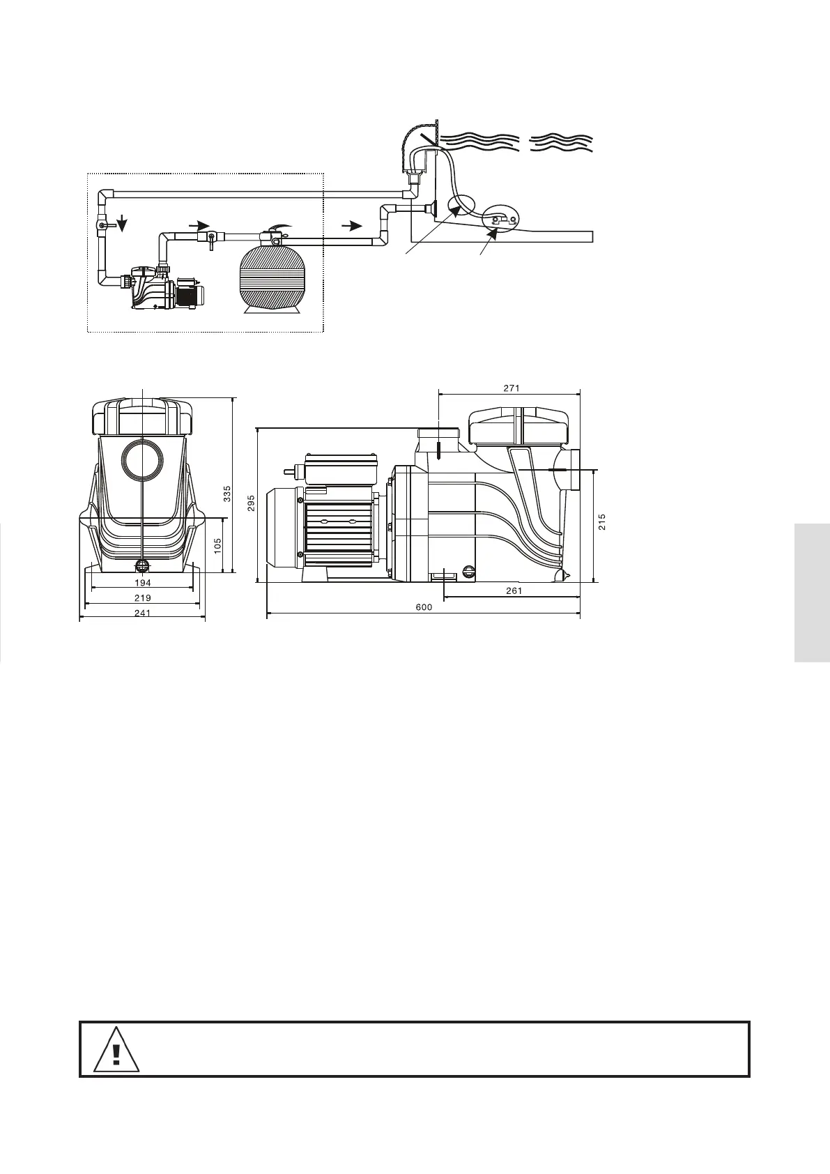
Schéma d’installation type
Pompe à eau
Filtre à sable
Tuyau d'aspirateur Tête d'aspirateur
Dimensions
Raccordement de la tuyauterie
Les pompes de piscine StarFlo sont fournies avec des unions pour le raccordement à la
tuyauterie la piscine. Les modèles suivants sont conçus pour accepter les tuyaux en PVC
européens de 50 et 63 mm:
* DSF150(CE) * DSF420(CE)
* DSF200(CE) * DSF3003F(CE)
* DSF250(CE) * DSF4203F(CE)
* DSF300(CE)
Les modèles suivants sont conçus pour des tubes PVC nominaux de 40 mm et 50 mm:
* DSF150 * DSF420
* DSF200 * DSF3003F
* DSF250 * DSF4203F
* DSF300
L’utilisation d’une conduite plus petite que ce qui est spécié ci-dessus est déconseillé. La
tuyauterie d’aspiration doit être exempte de fuites d’air. Les bosses et les cavités causent
des difcultés d’aspiration. La tuyauterie de refoulement venant de la sortie de pompe doit
être raccordée au raccord d’entrée sur le ltre de la piscine (généralement sur la vanne de
régulation du ltre).
Les raccords-écrous doivent être serrés à la main. Vous n’avez besoin
d’aucun produit d’étanchéité, colle ni silicone.
FRENCH
FRENCH

Related product manuals