EasyManua.ls Logo

Davey StarFlo DSF300 - Installation Details; Typical Installation Diagram; Dimensions; Pipe Connection

Davey StarFlo DSF300
84 pages
To Next Page IconTo Next Page
To Next Page IconTo Next Page
To Previous Page IconTo Previous Page
To Previous Page IconTo Previous Page
Loading...
5
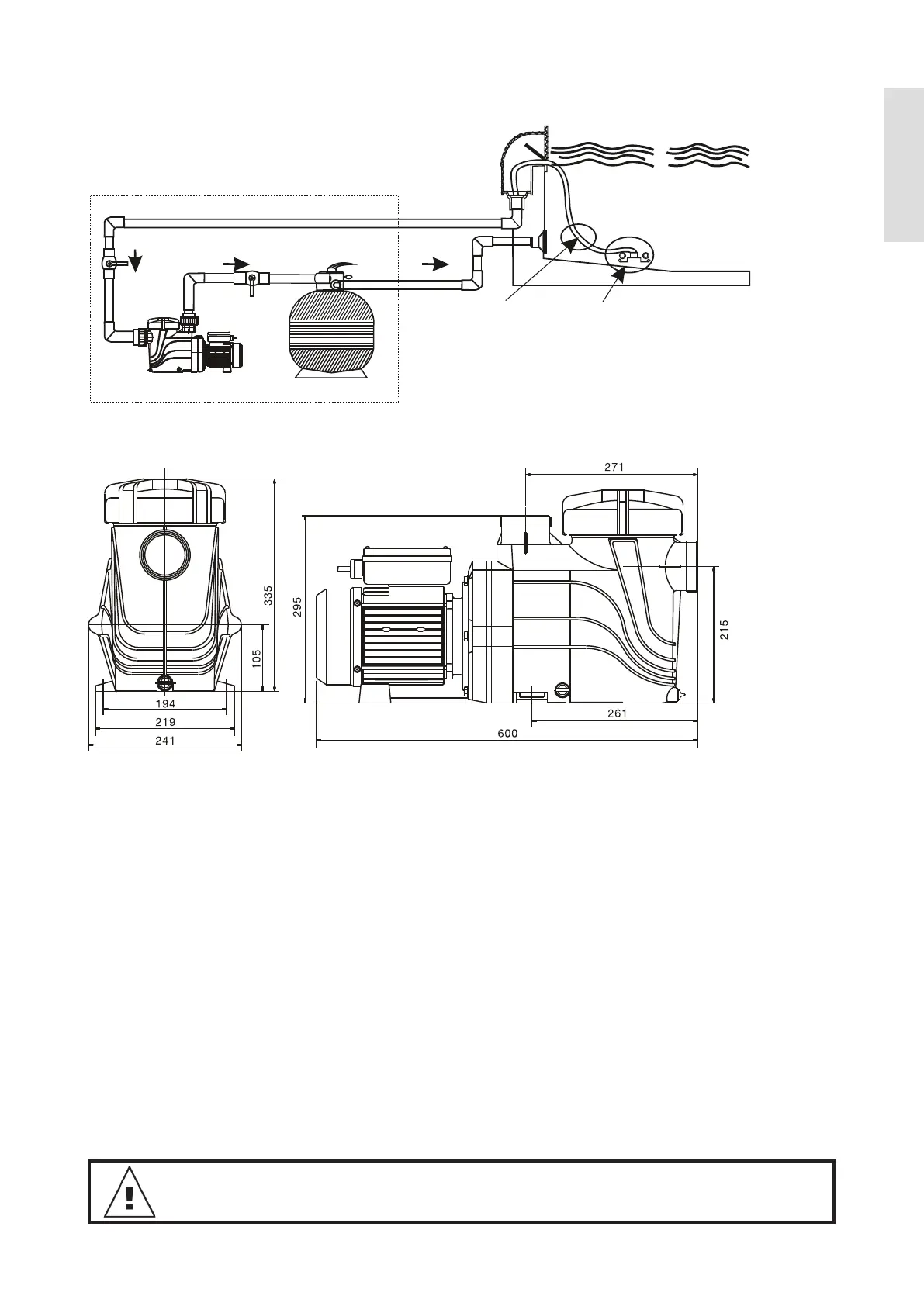
Typical installation diagram
Water pump
Sand filter
Vacuum hose Vacuum head
Dimensions
Pipe Connection
The StarFlo pool pumps are supplied with barrel unions for connecting to the piping from
the pool. The following models are designed to accept European 50 & 63mm PVC pipe:
* DSF150(CE) * DSF420(CE)
* DSF200(CE) * DSF3003F(CE)
* DSF250(CE) * DSF4203F(CE)
* DSF300(CE)
The following models are designed to 40mm & 50mm nominal PVC pipe:
* DSF150 * DSF420
* DSF200 * DSF3003F
* DSF250 * DSF4203F
* DSF300
The use of any pipe smaller than those specied above is not recommended. Suction
piping should be free from all air leaks and any humps and hollows which cause suction
difculties. The discharge piping from the pump outlet should be connected to the inlet
connection on the swimming pool lter (usually at the lter control valve).
IMPORTANT: Barrel unions need to be hand tightened. No sealant, glues
or silicones are required.
ENGLISH
ENGLISH

Other manuals for Davey StarFlo DSF300

Related product manuals