EasyManua.ls Logo

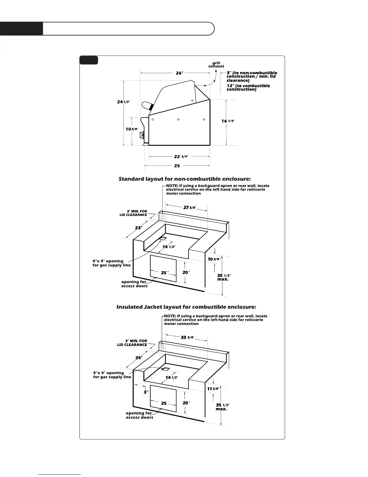
DCS BG27-BQRL - Built-In Construction Details; Standard Layout for Non-Combustible Enclosures; Insulated Jacket Layout for Combustible Enclosures

DCS BG27-BQRL
32 pages
Print Icon
To Next Page IconTo Next Page
To Next Page IconTo Next Page
To Previous Page IconTo Previous Page
To Previous Page IconTo Previous Page
Loading...
10
Built–In Construction Details
"
"
FIG.04

Related product manuals