EasyManua.ls Logo

DCS DCS-VH-48HS - Page 25

DCS DCS-VH-48HS
34 pages
Print Icon
To Next Page IconTo Next Page
To Next Page IconTo Next Page
To Previous Page IconTo Previous Page
To Previous Page IconTo Previous Page
Loading...
7
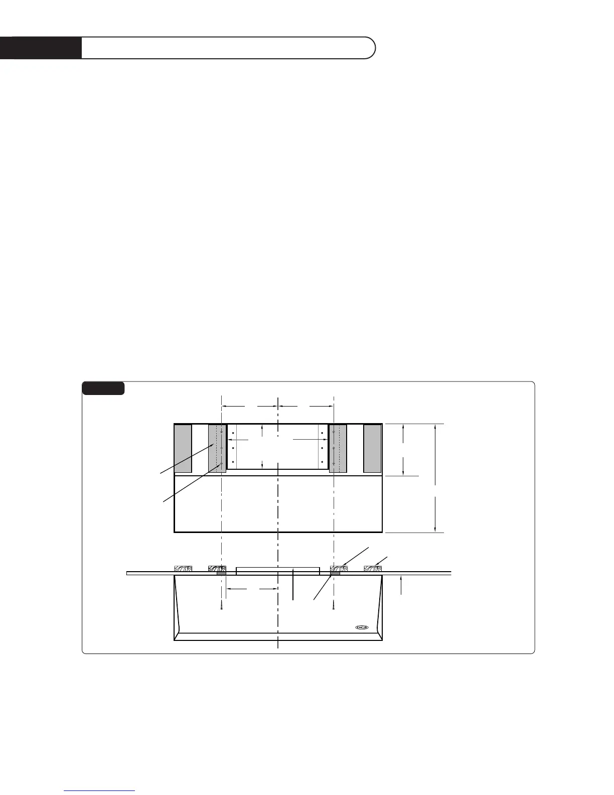
I nstallation de la hotte ( avec sof f ite )
INSTALLATION DE LA HOTTE DANS LE SOFFITE:
À cette étape-ci de linstallation, le revêtement intérieur doit être retiré de la hotte et mis de côté (voir pages 5 et 6). À
présent, laccès aux trous de montage du soffite et aux trous de fixation au mur, situés au panneau arrière de lappareil, est
libre.
Une fois le cadrage du soffite terminé, mettez la hotte assemblée (hotte, kit de raccordement et ventilateur) en place et fixez-
la au cadrage du soffite à laide de 6 vis à bois.
NOTE : nous recommandons que linstallateur utilise les trous situés au panneau arrière de la hotte pour fixer celle-ci au mur du fond
et minimiser ainsi le bruit et les vibrations émanant de lappareil.
NOTE : veillez à ce que les vis de montage soient assez longues pour traverser les cales de bois et pénétrer dans les pièces de 2 x 4
pour assurer un support solide. Voir Fig.3
-PASSEZ À LA SECTION PHASE FINALE DE LINSTALLATION - Page 9
"B" "B"
25"
12"
VUE DE DESSUS (MODÈLE 48)
2 x 4 posées
selon la Fig. 1
Trous de
montage du
soffite de 3/8
dans la hotte
(6 au total)
VUE DE FACE
CLOISON SÈCHE DU PLAFOND
2 x 4's dans le soffite
Kit de raccordement
Trous de montage du soffite (6)
2 x 4 extérieures
(modèles 48 seulement)
Kit de raccordement
(23-1/2 x 10-1/2")
TOUS LES MODÈLES
"A"
FIG. 03

Related product manuals