EasyManua.ls Logo

DCS DCS-VH-48HS - Page 8

DCS DCS-VH-48HS
34 pages
Print Icon
To Next Page IconTo Next Page
To Next Page IconTo Next Page
To Previous Page IconTo Previous Page
To Previous Page IconTo Previous Page
Loading...
7
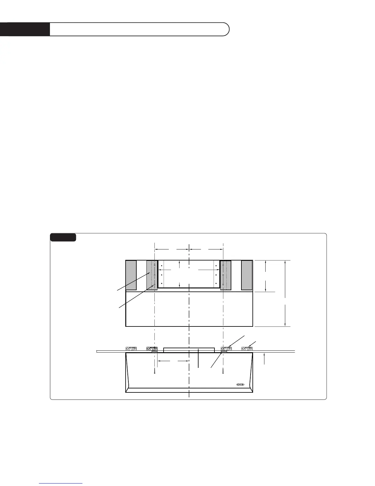
V ent Hood I ns tallation ( with s off it )
INSTALL VENT HOOD INTO SOFFIT:
At this point in the installation process, the inner liner should be removed from the Hood and set aside
(see-Pgs 5 & 6).With the liner set aside, there is clear access to the Soffit mounting holes and wall
mounting holes in the rear panel of the unit.
Once the soffit framing has been completed, place assembled vent hood (hood, rough-in kit, and
ventilator) into place and secure hood to the soffit frame with 6 wood screws.
NOTE: Additionally, we recommend the installer utilize the holes provided in the rear panel of the hood to
secure the hood to the rear wall and minimize any noise and vibration of the unit.
NOTE: Assure that the mounting screws are long enough to be driven through the wood shims into the
installed 2 x 4s for total support. -see fig.3
-GO TO FINISHING THE INSTALLATION- Pg. 9
"B" "B"
25"
12"
TOP VIEW (48" MODEL SHOWN)
2 x 4's
installed per
Fig. 1
3/8" Soffit
mounting
holes in
Vent Hood
(6 total)
FRONT VIEW
CEILING DRYWALL
2 x 4's in Soffit
Rough-in Kit
Soffit Mounting Screws (6)
Outer 2 x 4's
(48" Models only)
Rough-in Kit
(23-1/2 x 10-1/2")
ALL MODELS
"A"
FIG.03

Related product manuals