EasyManua.ls Logo

DCS DRH-48N - Page 11

DCS DRH-48N
44 pages
Print Icon
To Next Page IconTo Next Page
To Next Page IconTo Next Page
To Previous Page IconTo Previous Page
To Previous Page IconTo Previous Page
Loading...
9
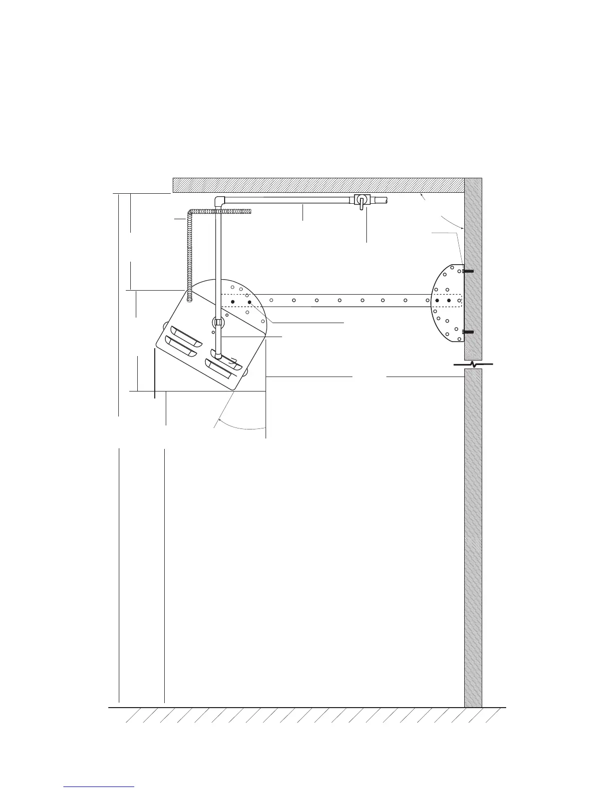
INSTALLATION
CLEARANCE SPECIFICATIONS
45
0
INSTALLATION
MINIMUM CLEARANCES TO COMBUSTIBLE MATERIAL.
18"
SIDE VIE W
25"
45
0
max.
4 Bolts per
Bracket
Sur face
Combustible
(installer supplied)
FLOOR
96"
Gas Shut-off
Valve
(installer supplied)
Gas Pipe
(installer supplied)
Utilize 2
Bolts (min)
per Bracket
Drip Leg
with 1/8” NPT
plugged test
gage connection
min.
min.
12"
130"
REF.
min.
min.
1/2"
Conduit
(installer
supplied)
Note: Stainless steel hardware is highly
recommended. Bolts in the wall
should be secured to the wall
studs/struc
ture. Weight of the
heater is 50 lbs.

Related product manuals