EasyManua.ls Logo

Dell E2422HS - Exploded View Diagram and Parts List

Dell E2422HS
16 pages
Print Icon
To Next Page IconTo Next Page
To Next Page IconTo Next Page
To Previous Page IconTo Previous Page
To Previous Page IconTo Previous Page
Loading...
Service Manual
5
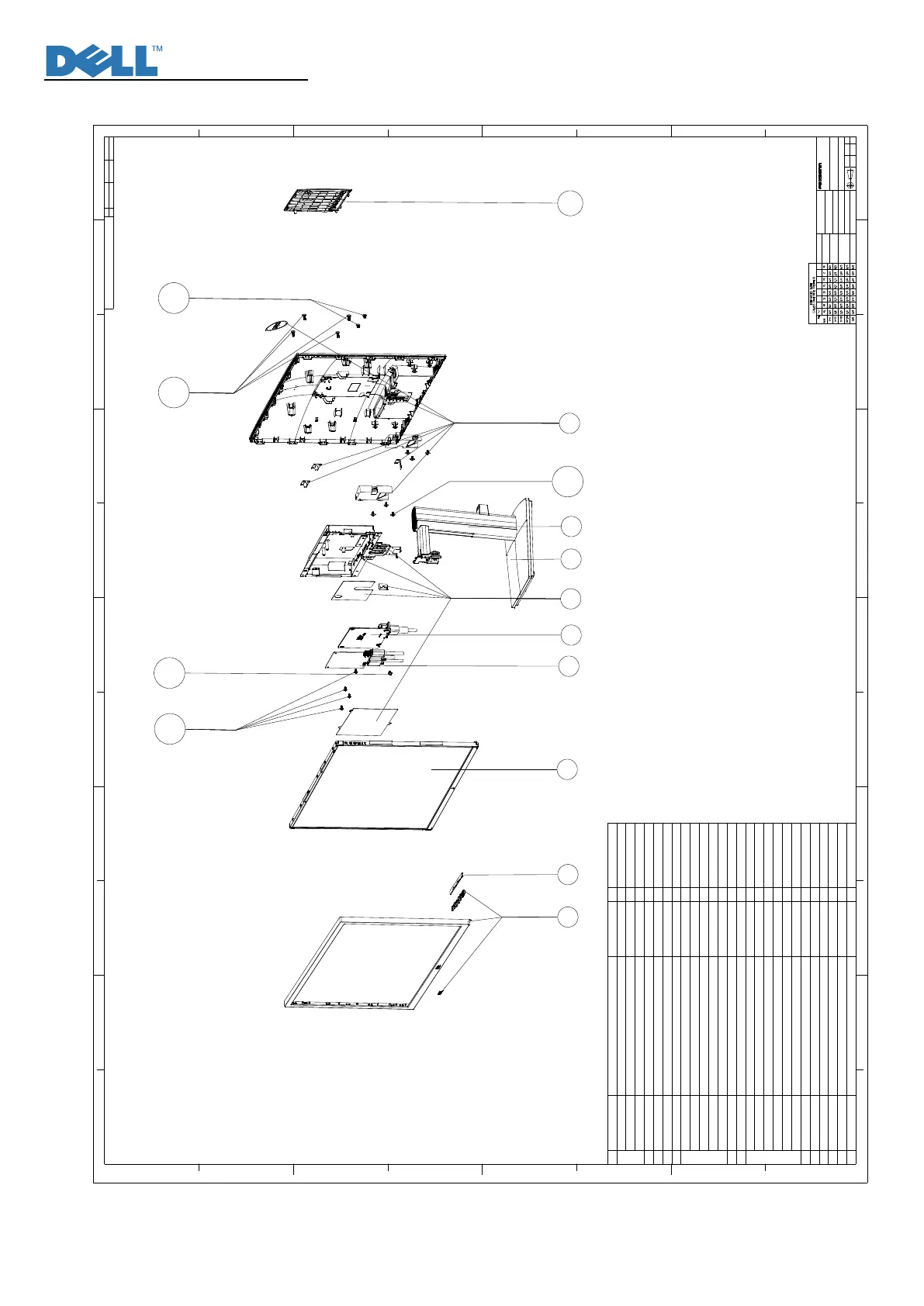
2. Exploded view diagram with list of items
S-1
2
1
1 2 3 4 5 6
10
S-5S-4
6
9
4
5
7
8
S-3
S-2
3
7 8 9 10
DR:
11
A0
H
G
F
E
D
C
B
A
1 2 3 4
PROJECT NAME
PART NUMBER
Q'TY
FINISH
MAT'L
MM
APPD:
CHKD:
UNITS
DWG NO.:
TITLE:
H
G
F
E
D
C
5 6 7 8 9 10
B
A
11
CAD TYPE: PRO/E
SIZE
MOLD ENG:
DRAW.DESCRIPTIONECN NO.REV.
Charles
A
A1 / 11:2
Apr-27-21
Charles
REV.SHEETSCALE
0_E2422HS_MOINTOR_ASM
Corey
Exploded Drawing
E2422HS
圖面如有疑問請聯系設計負責人:Charles Liu
Keypad - - 1
3 Panel - - 1
4 IF Board - - 1 1A1H
5 Power Board - - 1
6
Mylar 1 panel - PW board
Mylar 1 chassis hole
Mylar 1 PW board - chassis
Main Chassis E2422HS,MAIN CHASSIS,LGD,L5,HF 1B43VN700-600-G 1 1A1H
Hinge Bracket E2422HS,BRACKET,HF 1B43VNA00-600-G 1
7 Stand Base - - 1
8 Stand Riser - - 1
9
VESA Bracket VESA PLATE,SGCC,T1.2+Stand off,LE24SY 2A601Q500-600-G 2
Back Cover E2422HS,BACK COVER,LGD&BOE,L5,HF 1B613MB00-600-G 1
Rear Logo D52K6,REAR LOGO,BDG,PET,Circle,50mm 3C1101900-H5L-G 1
10 VESA Cover ASSY,VESA COVER,FS,LE22T0,HF 7B162LV00-JRS-G
1
S-1
Screw M3x6 4 PCB - chassis
S-2
Screw M4x9 1 Grounding
S-3
S-4 Screw M4x10 4 VESA
S-5 Screw M4x4.5 2 Hinge bracket
No. Item Description Part Number QTY Remark
1
Front Logo K64HV,FRONT LOGO,BDG, PET, 22MM,DELL 3C0708R00-H5L-G 1
Front Bezel FRONT BEZEL,L5,LE24TE,HF 1B613MC00-600-G 1
OSD Button Power+OSD Button,FS,LE24TE,HF 7B2505Y00-JRS-G 1
2
6
E2422HS,BACK COVER,INX&HKC,L5,HF 1B613M800-600-G
1
1
K-LOCK PLATE
K-LOCK PLATE,SGCC,T0.5,CMMSG MESD,LE22SD
1B43KKR00-600-G
Screw T3x6
Speaker
Speaker

Related product manuals