EasyManua.ls Logo

Delta Electronics ASDA-A2 Series - Page 542

Delta Electronics ASDA-A2 Series
583 pages
Print Icon
To Next Page IconTo Next Page
To Next Page IconTo Next Page
To Previous Page IconTo Previous Page
To Previous Page IconTo Previous Page
Loading...
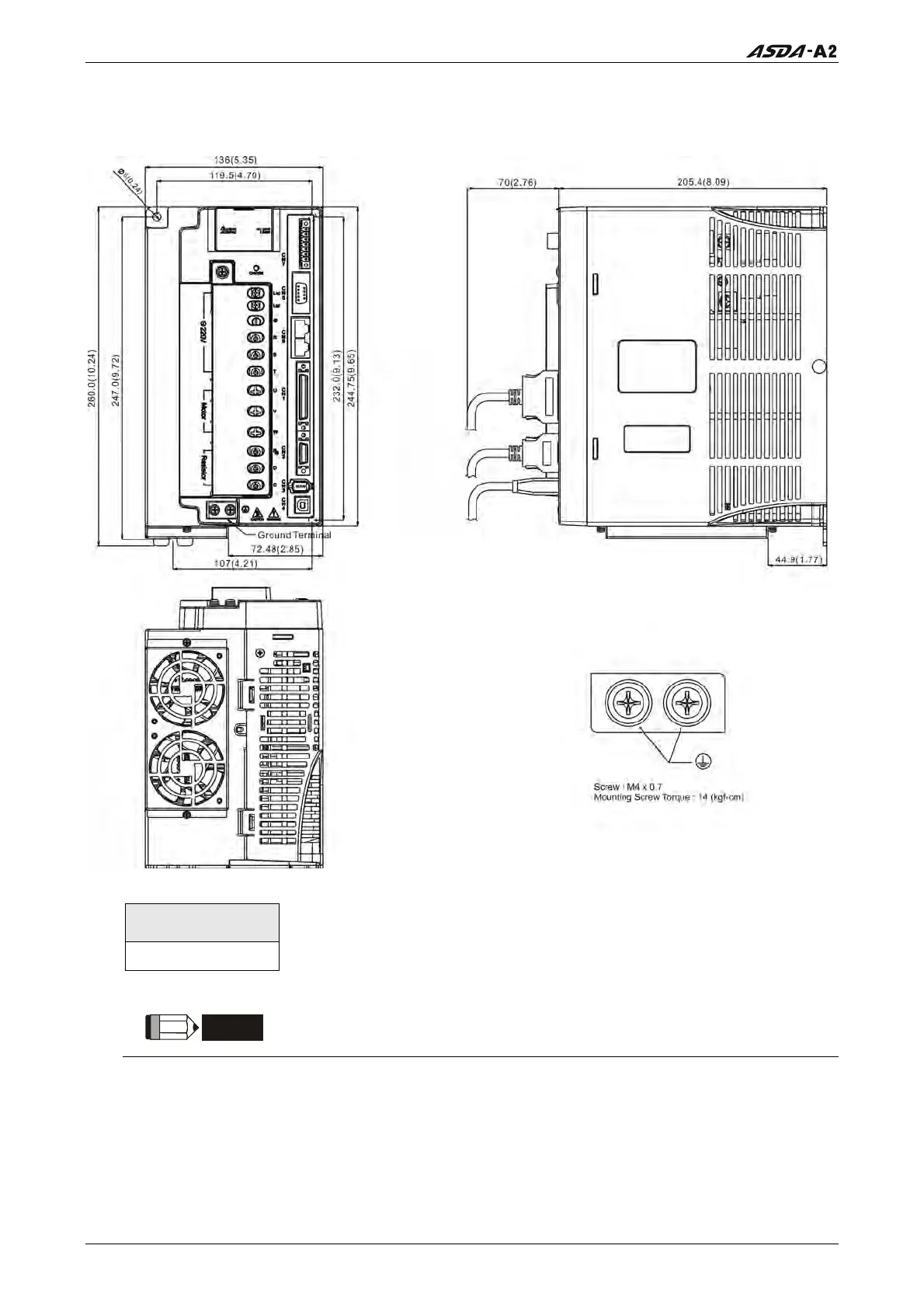
Chapter 11 Specifications
Revision January 2011 11-25
Order P/N: ASD-A2-7523 (7.5kW)
WEIGHT
5.9 (13.0)
NOTE
1) Dimensions are in millimeters (inches); Weights are in kilograms (kg) and (pounds (lbs)).
2) Actual measured values are in metric units. Dimensions and weights in (imperial units) are
for reference only.
3) Dimensions and weights of the servo drive may be revised without prior notice.
Call 1(800)985-6929 for Sales
deltaacdrives.com
sales@deltaacdrives.com
Call 1(800)985-6929 for Sales
deltaacdrives.com
sales@deltaacdrives.com

Related product manuals