EasyManua.ls Logo

Delta AS300N-A

Delta AS300N-A
460 pages
To Next Page IconTo Next Page
To Next Page IconTo Next Page
To Previous Page IconTo Previous Page
To Previous Page IconTo Previous Page
Loading...
AS Series Operation Manual
2-23
_2
AS64AN02T-A
8
9
92
75
8
2
Y0
40
3
7
6
5
4
13
11
12
10
8
9
Y3
14
15
2
64AN
40
Y1
0
1
2
1
0
Y2
PWR
OUT
1
0
10
88
98.3
1
4
5
2
3
6
7
38.2
35
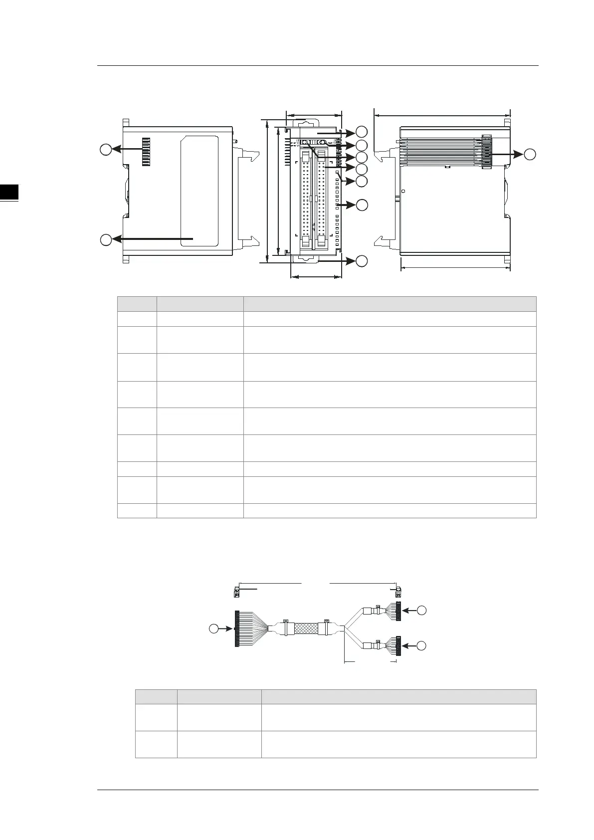
Unit: mm
Number
Name
Description
1
Model name
Model name of the module
2
LED indicator
switch 1
Switches the LED indicators to their represented outputs.
3
LED indicator
switch 2
Switches the LED indicators to their represented outputs.
4 ML connector
For the external I/O connecting cables UC-ET010-24D, UC-ET020-
24D,
UC-ET030-24D
5
Power LED
indicator
Indicates the power status of the module
6
Output LED
indicator
If there is an output signal, the output LED indicator is ON.
7
DIN rail clip
Secures the DIN rail
8
External module
port
Connects the modules
9
Label
Nameplate
ML connector, extension cable, and wiring modules
1. Extension Cable UC-ET010-24D (1M) / UC-ET020-24D (2M) / UC-ET030-24D (3M)
Length
3 9 40
1 2
500 +10m m
-
39 40
21 2 2
19 2 0
1 2
#1
#2
1
2
2
Unit: mm
Number
Name
Description
1 IDC 40-pin terminal
Connects a digital input/output module and an external terminal
module.
2 IDC 20-pin terminal
Connects the external terminal modules UB-10-ID16A/UB-10-
OR16A/UB-10-OR16B

Table of Contents

Related product manuals