EasyManua.ls Logo

Delta CASSIDY Series - Electrical Wire Connections; Connecting Faucet Supply Wires

Delta CASSIDY Series
16 pages
Print Icon
To Next Page IconTo Next Page
To Next Page IconTo Next Page
To Previous Page IconTo Previous Page
To Previous Page IconTo Previous Page
Loading...
9
72677 Rev. B
5
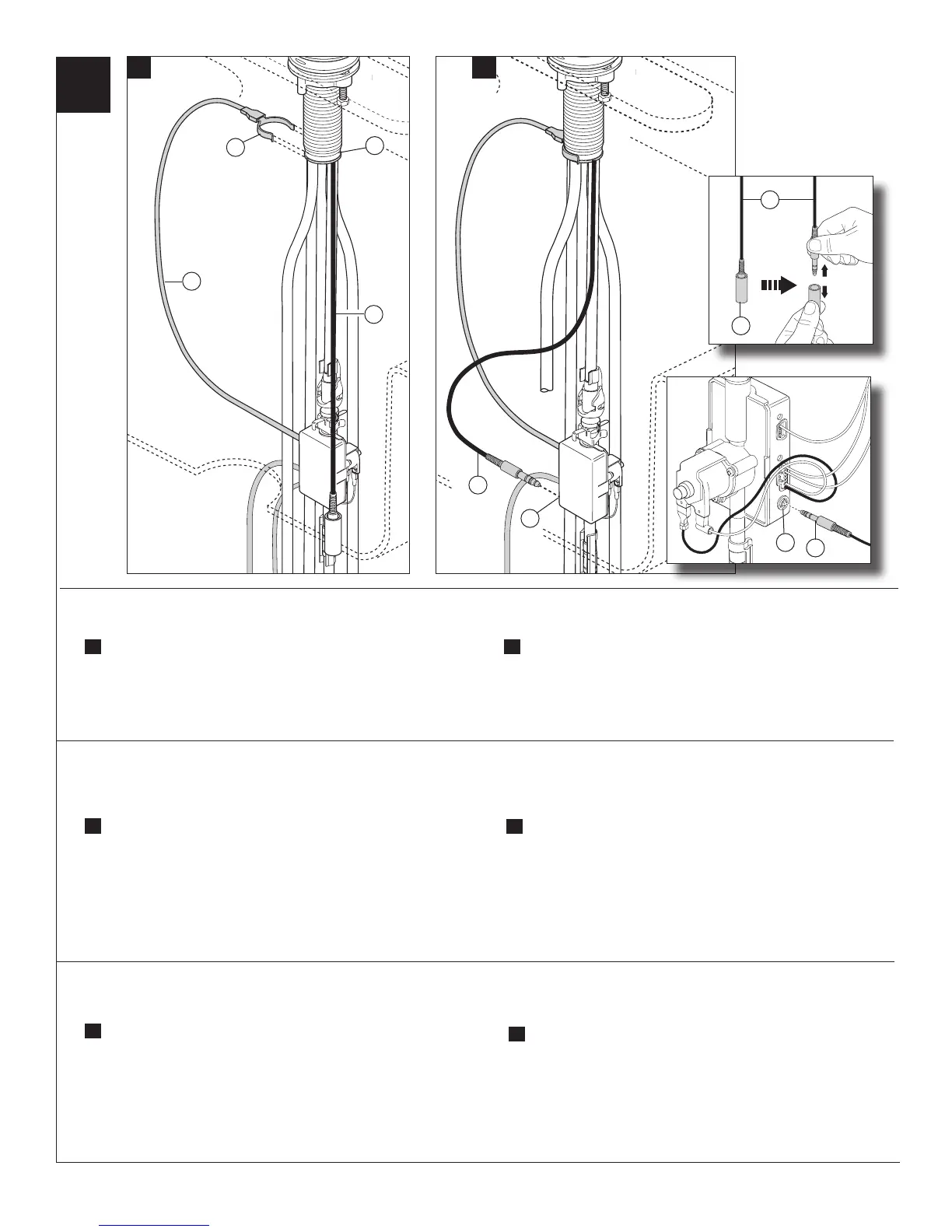
B.
Wire Connections
Conexiones de Alambre
Branchement des fils
A.
Briefly touch the cold stop or other ground with hand to dissipate any static
charge.
Attachwire(1),fromthesolenoidassembly,ontothegrooveon
mountingshank(2).
Orientclip(3)sowireexitsawayfromwire(4).
B.
Wireextension(3)
,extendingfromfaucetshank,
is shipped with a protective
plasticcap(4).Removethisbygraspingtheplugandpullingoffthecap.
Discard cap.
Connectwire(3)toport(5)onthesolenoidassembly.Avoid
twisting wires together or placing the wires close to each other.
A.
1
2
4
A.
Toquebrevementeconlamanoeltopedeaguafríauotroobjetocon
conexiónatierraparadisiparcualquiercargaestática.Conecteelcable(1),
delensambledelsolenoide,enlaranuradelaespigademontaje(2).Oriente
elgancho(3)demaneraqueelalambresalgaalejadodealambre(4).
B.
Elalambredeextensión(3),queseextiendedesdelaespigadelallavede
aguaogrifo,seenvíaconunatapaplásticaprotectora(4).Descártela
agarrandoelenchufeyquitandolatapa.Desechelatapa.Conecteelalambre
(3)alatoma(5)sobreelensambledelsolenoide.Evitetorcerjuntoslos
alambres o colocar los alambres cerca uno del otro.
A.
Touchezbrvementaveclamainlerobinetd’arrêtd’eaufroideouunautre
élémentmisàlaterrepourdissipertoutecharged’électricitéstatique.
Attachezlefilmétallique(1)del’électrovannedanslarainuredelatigede
montage(2).Orientezl’agrafe(3)demanièrequel’extrémitédufils’écarte
dufil(4).
B.
Leboutdefil(3),quiestreliéaumanchondurobinetestmunid’uncapuchon
protecteurenplastique(4).Vousdevezl’enlever.Saisissezlaficheettirezsurle
capuchon.Raccordezlefil(3)àlaborne(5)del’électrovanne.Évitezde
torsaderlesfilsensembleoudelesplacerl’unprèsdel’autre.
4
3
3
5
5
3
3

Other manuals for Delta CASSIDY Series

Related product manuals