EasyManua.ls Logo

Delta DVP80ES300R - Page 138

Delta DVP80ES300R
411 pages
Print Icon
To Next Page IconTo Next Page
To Next Page IconTo Next Page
To Previous Page IconTo Previous Page
To Previous Page IconTo Previous Page
Loading...
DVP-ES3 Series Operation Manual
5-32
_5
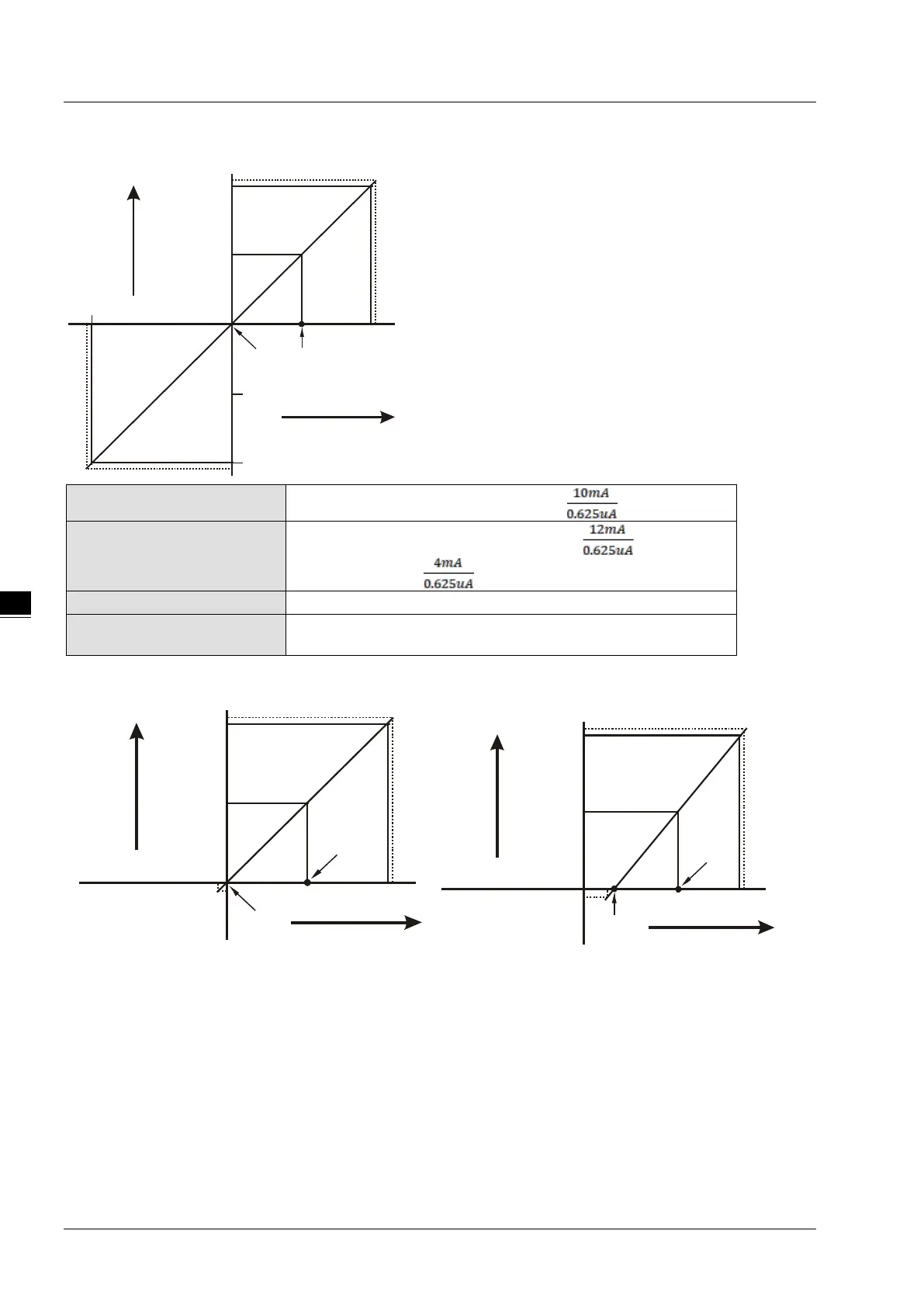
Mode 4:
Current input
+32000
+16000
-16000
20mA
-32000
-20mA
10mA
0
Gain
Offset
Digital
output
+32384
-32384
Mode 5 of CR#2 ~ CR#5
0mA ~ +20mA, Default: Gain = 16,000= , Offset = 0
Mode 6 of CR#2 ~ CR#5
+4mA ~ +20mA, Default: Gain = 19,200 = ,
Offset = 6,400
=
Range of digital conversion
0 ~ +32,000
Max./Min. range of digital
conversion
-384 ~ +32,384
Mode 5:
Mode 6:
Current input
+32000
+16000
20mA
10mA
0
Gain
Offset
Digital
output
+32384
-384
Current input
+32000
+16000
20mA12mA
0
Gain
Offset
Digital
output
+32384
-384
4mA

Table of Contents

Related product manuals