EasyManua.ls Logo

Delta E8-TL-US - Page 39

Delta E8-TL-US
73 pages
Print Icon
To Next Page IconTo Next Page
To Next Page IconTo Next Page
To Previous Page IconTo Previous Page
To Previous Page IconTo Previous Page
Loading...
37
B-
A+
EN
GND
B-
A+
EN
GND
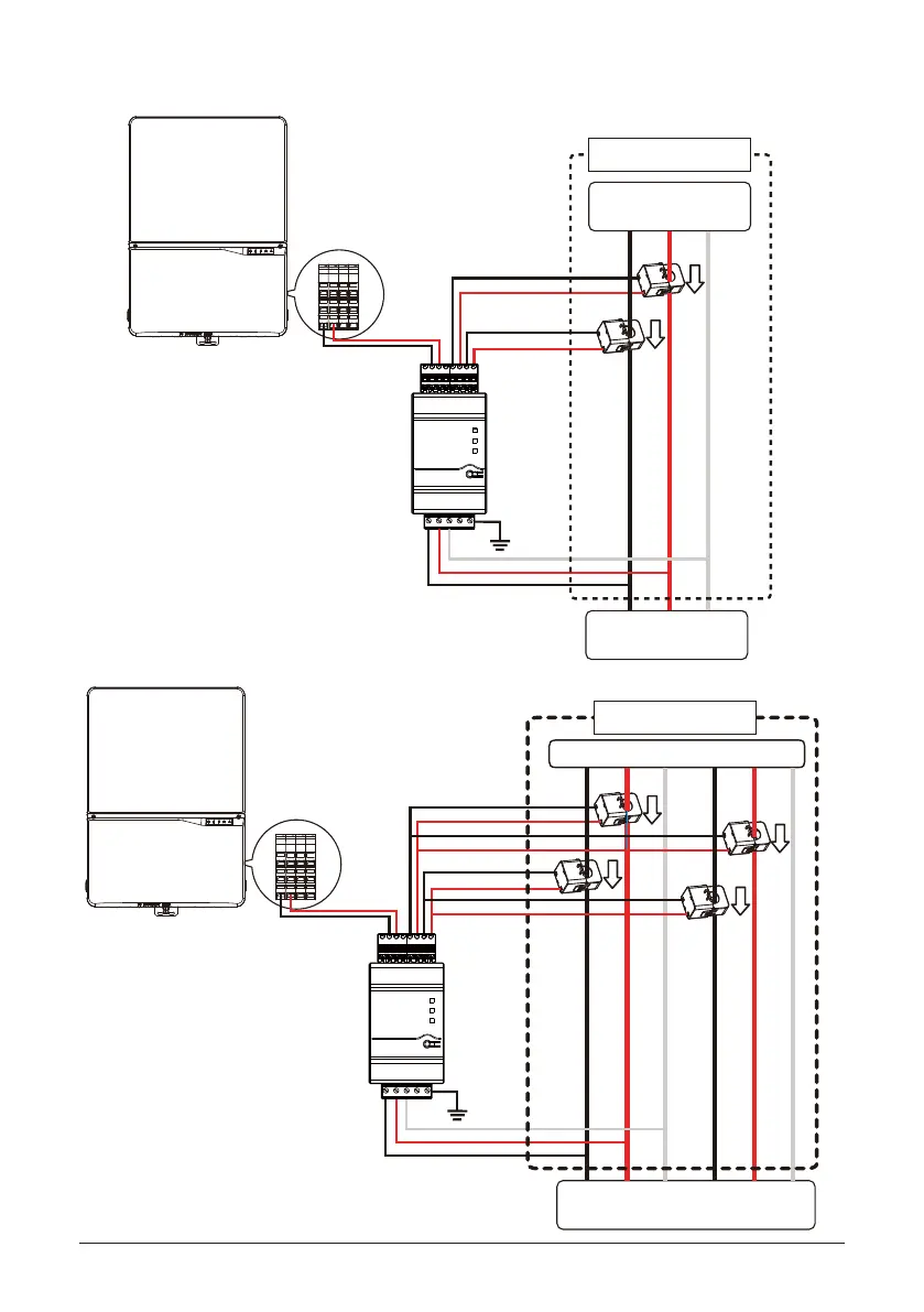
Energy meter connection case1
Energy meter connection case2
Power Distribution
B-
A+
EN
GND
B-
A+
EN
GND
Utility Grid
L1 NL2
NL2L1NL2L1
Household
Power Distribution Box
Utility Grid
Household

Related product manuals