EasyManua.ls Logo

Delta EV Ultra - Cable Entry

Delta EV Ultra
27 pages
Print Icon
To Next Page IconTo Next Page
To Next Page IconTo Next Page
To Previous Page IconTo Previous Page
To Previous Page IconTo Previous Page
Loading...
10
EV Ultra Fast Charger Site preparation
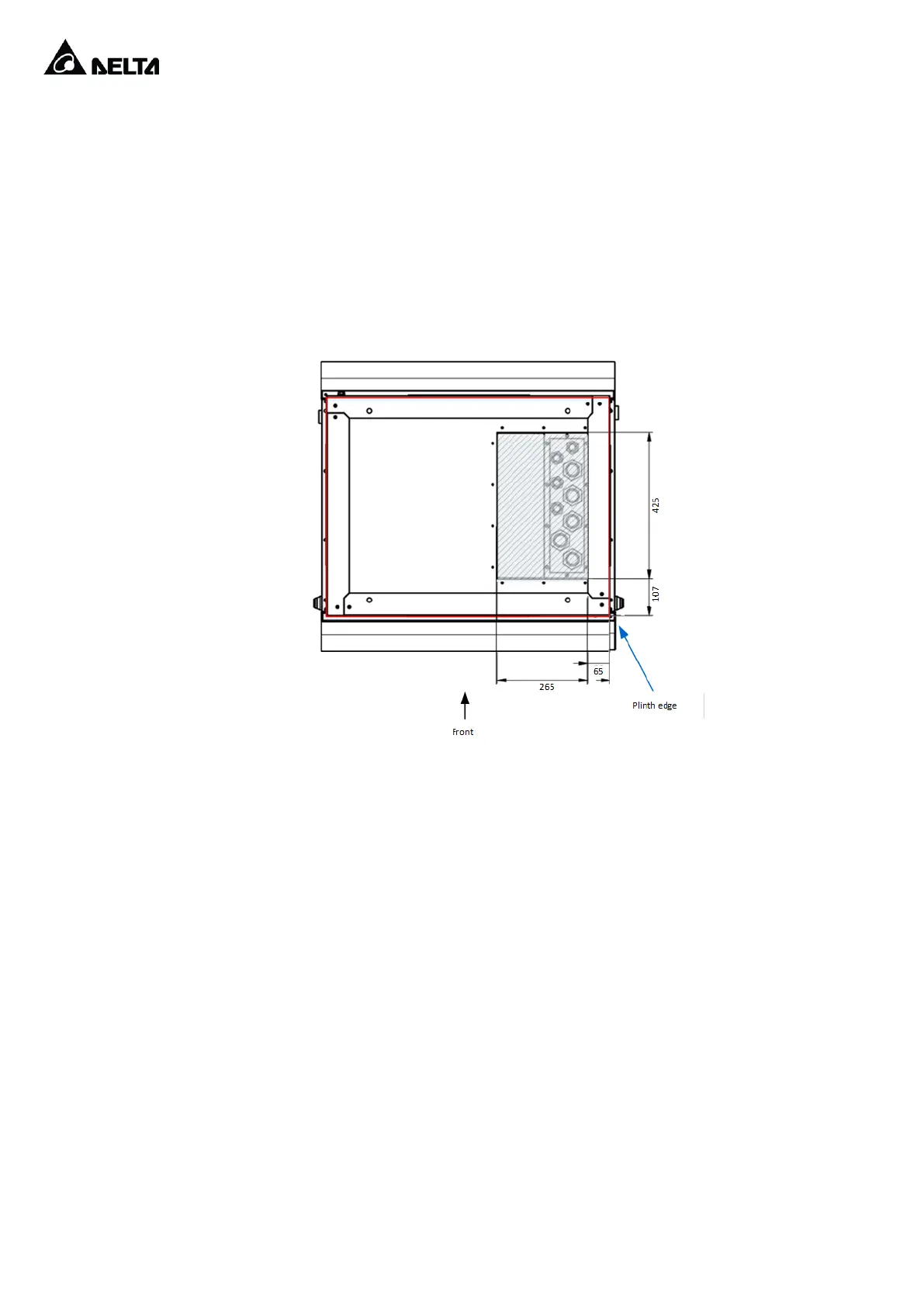
4.5.3 Cable entry
EV Ultra Fast Charger should be connected with cables entering from the bottom of the device. Plinth is
equipped with dedicated cable glands. Dimensions of the cable entry are visible in pictures below.
Cable should be prepared inside the footprint of the EV quick Charger. Picture below shows dimensions of
the plinth and cable entry. Notice plinth dimensions are different than overall footprint.
Exact cable location should be inside green color marked zone.
Figure 3 Cable entry zone top view