EasyManua.ls Logo

Delta EV Ultra - 5 Preparing for the Installation

Delta EV Ultra
27 pages
Print Icon
To Next Page IconTo Next Page
To Next Page IconTo Next Page
To Previous Page IconTo Previous Page
To Previous Page IconTo Previous Page
Loading...
12
EV Ultra Fast Charger Preparing for the installation
5 Preparing for the installation
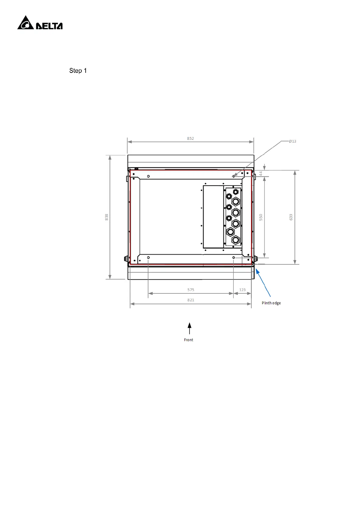
Prepare the concrete base for EV Ultra fast charger according to the figure below. The
dimensions of the concrete base should allow installation of the cabinet’s plinth on it
(external size c.a.
W 825 x D 650).
Figure 5 Installation dimensions top view