EasyManua.ls Logo

Delta KPC-CC01 - Page 229

Delta KPC-CC01
868 pages
Print Icon
To Next Page IconTo Next Page
To Next Page IconTo Next Page
To Previous Page IconTo Previous Page
To Previous Page IconTo Previous Page
Loading...
Chapter 7 Optional AccessoriesCP2000
7-120
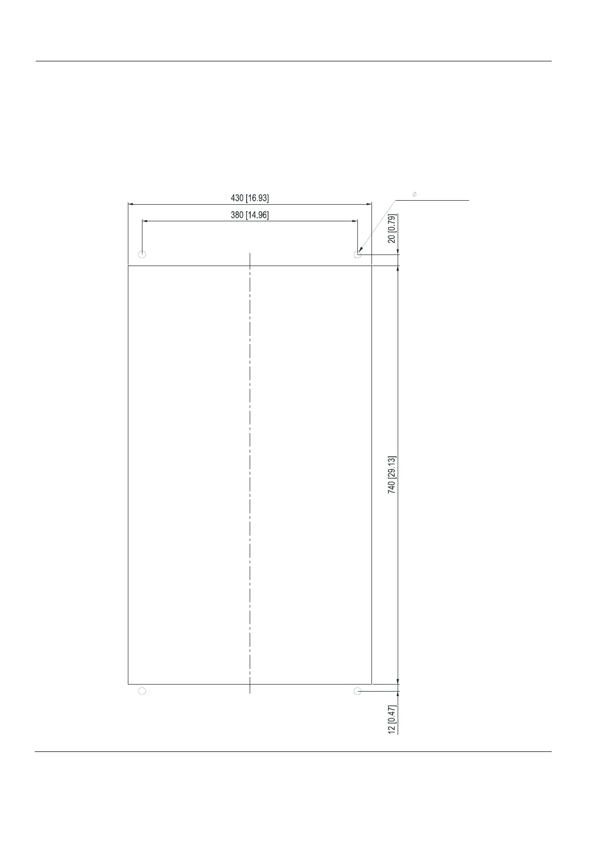
Frame F Installation
Applicable model
VFD1600CP43A-00; VFD1600CP43A-21; VFD1850CP43B-00; VFD1850CP43B-21; VFD1600CP63A-00;
VFD1600CP63A-21; VFD2000CP63A-00; VFD2000CP63A-21
Cutout dimension Unit : mm [inch]
M12*P1.75(4X)
OR
13.0[0.51](4X)

Table of Contents

Related product manuals