EasyManua.ls Logo

Delta VFD015B43A - Page 27

Delta VFD015B43A
250 pages
Print Icon
To Next Page IconTo Next Page
To Next Page IconTo Next Page
To Previous Page IconTo Previous Page
To Previous Page IconTo Previous Page
Loading...
Chapter 2 Installation and Wiring_VFD-B Series
Revision 10/2005, BE13, SW V4.08 2-9
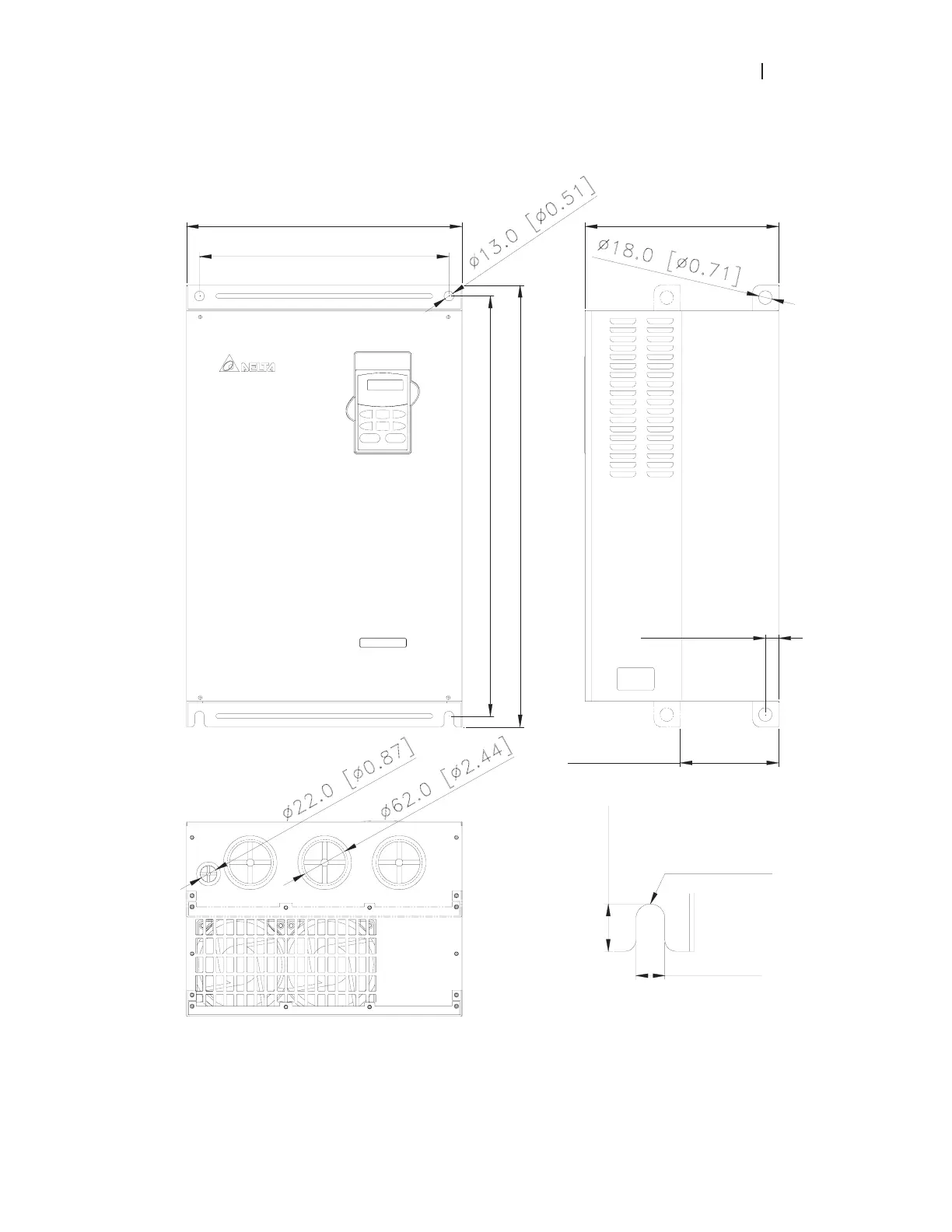
Frame E: VFD300B43A/53A, VFD370B43A/53A, VFD450B43A/53A
335.0 [13.19]
370.0 [14.57] 260.0 [10.24]
589.0 [23.19]
560.0 [22.05]
18.0 [0.71]
132.5 [5.22]
R6.5[0.25]
13.0[0.51]
21.0[0.83]

Table of Contents

Other manuals for Delta VFD015B43A

Related product manuals