EasyManua.ls Logo

Delta VFD040C43A-21 - Page 32

Delta VFD040C43A-21
1259 pages
Print Icon
To Next Page IconTo Next Page
To Next Page IconTo Next Page
To Previous Page IconTo Previous Page
To Previous Page IconTo Previous Page
Loading...
Chapter 1 IntroductionC2000 Plus
1-23
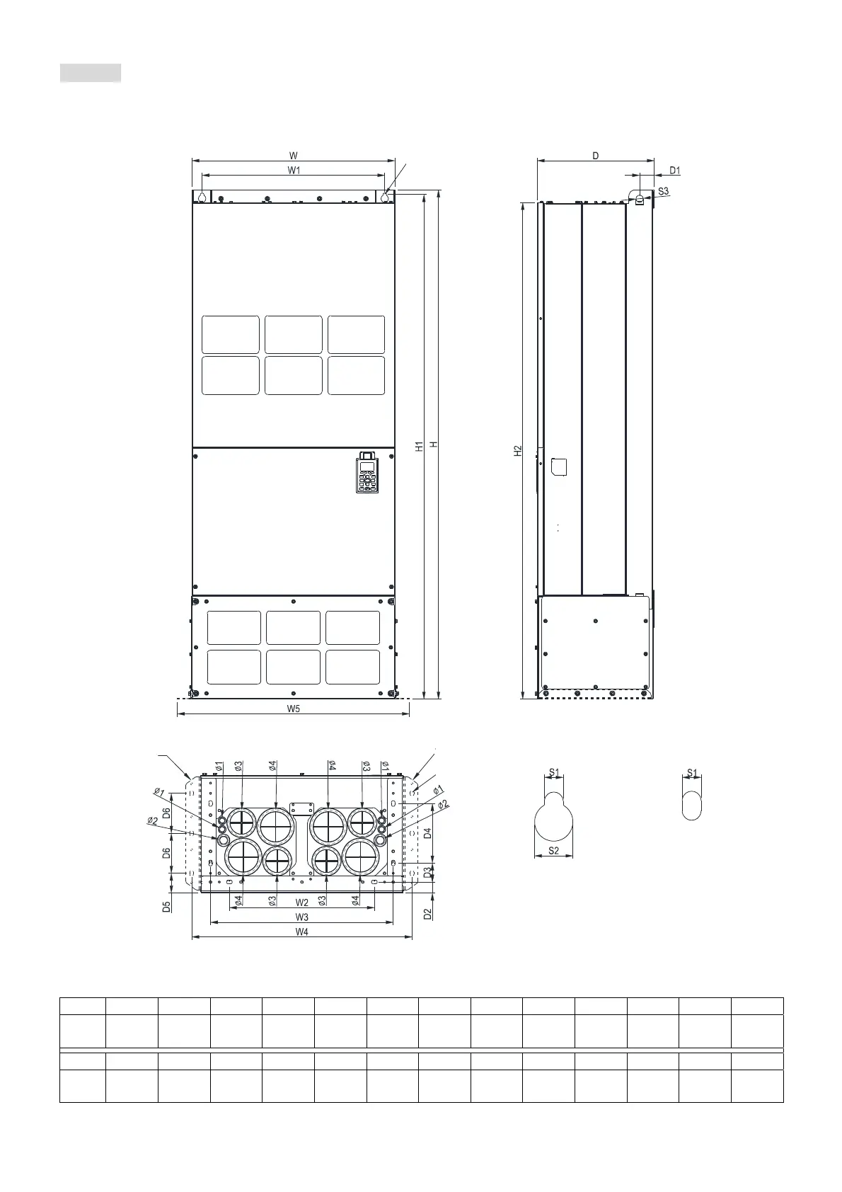
Frame H
H3: VFD2800C43C-21; VFD3150C43C-21; VFD3550C43C-21; VFD4000C43C-21; VFD4500C43C-21;
VFD5000C43C-21; VFD5600C43C-21
Figure 1-29
Unit: mm [inch]
Frame W H D W1 W2 W3 W4 W5 W6 H1 H2 H3 H4
H3
700.0
[27.56]
1745.0
[68.70]
404.0
[15.9]
630.0
[24.8]
500.0
[19.69]
630.0
[24.8]
760.0
[29.92]
800.0
[31.5]
-
1729.0
[68.07]
1701.6
[66.99]
- -
Frame D1 D2 D3 D4 D5 D6 S1 S2 S3 Φ1 Φ2 Φ3 Φ4
H3
51.0
[2.0]
38.0
[1.5]
65.0
[2.56]
204.0
[8.03]
68.0
[2.68]
137.0
[5.4]
13.0
[0.51]
26.5
[1.04]
25.0
[0.98]
22.0
[0.87]
34.0
[1.34]
91.5
[3.60]
117.5
[4.63]
See Detail A
Detail A
(Mounting Hole)
Detail B
(Mounting Hole)
See Detail B
側邊固定件
側邊固定件
Side fixing baffle plate Side fixing
baffle
p
late

Table of Contents

Related product manuals