EasyManua.ls Logo

Delta VFD110VL43C-J - Page 43

Delta VFD110VL43C-J
235 pages
Print Icon
To Next Page IconTo Next Page
To Next Page IconTo Next Page
To Previous Page IconTo Previous Page
To Previous Page IconTo Previous Page
Loading...
Chapter 2 Wiring | VFD-VJ
2-18
Frame
Size
AWG VENDOR P/N
A
(max.)
B
(max.)
C
(min.)
D
(max.)
d2
(min.)
E
(min.)
F
(min.)
W
(max.)
t
(max.)
D
6 K.S.T. RNBL14-6
30.0 10.0 9.5 14 6.2 13.0 9.5 18.5 3.0
2 K.S.T. RNBS38-6
Unit: mm
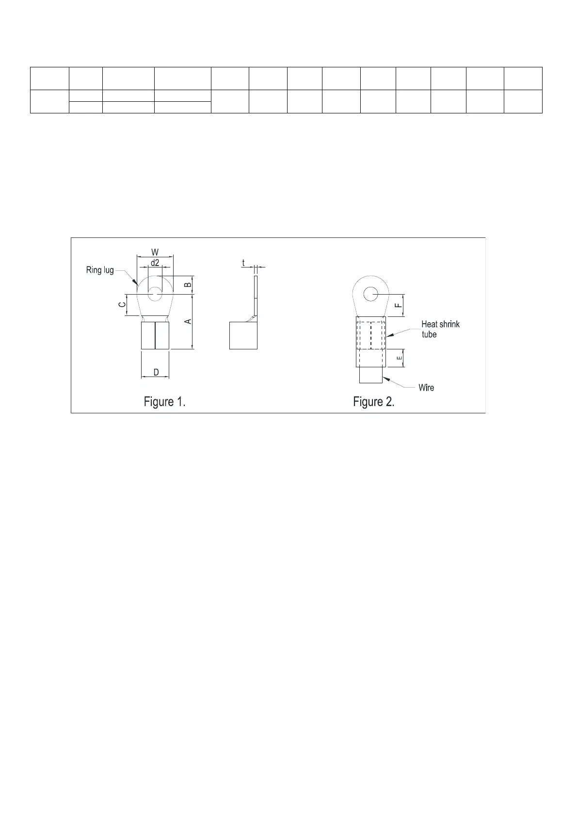
The following additional terminals are required when wiring. The additional terminal dimension should comply
with Figure 1 below.
After crimping the wire to the ring lug (must be UL approved), UL and CSA approved R/C (YDPU2), install
heat shrink tubing rated at a minimum of 600 V
AC
insulation over the live part. Refer to Figure 2 below.

Table of Contents

Related product manuals