EasyManua.ls Logo

Delta VFD220C4EA-21 - EMC-A22 A - Extension Card for 2-Point Analog Input; 2-Point Analog Output

Delta VFD220C4EA-21
1259 pages
Print Icon
To Next Page IconTo Next Page
To Next Page IconTo Next Page
To Previous Page IconTo Previous Page
To Previous Page IconTo Previous Page
Loading...
Chapter 8 Option CardsC2000 Plus
8-17
8-6 EMC-A22A -- Extension card for 2-point analog input/ 2-point analog output
8-6-1 Product File
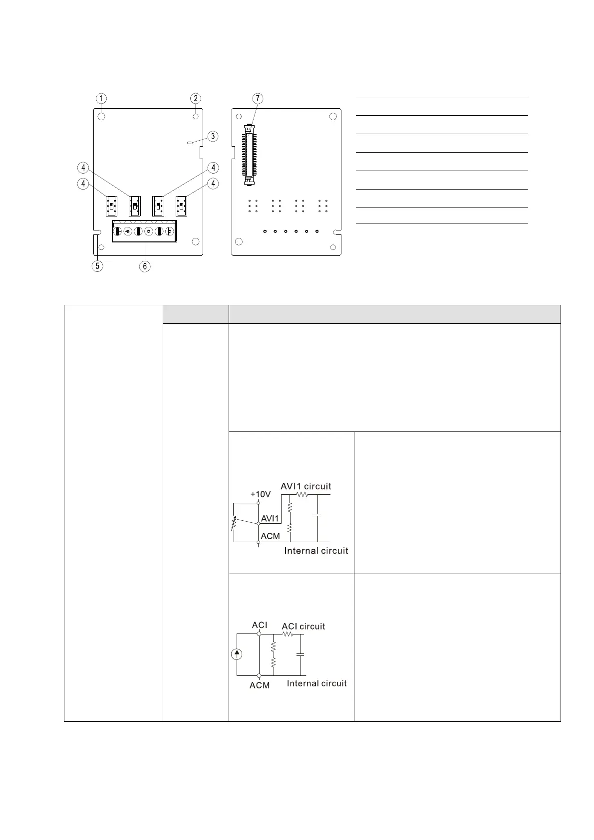
1. Screw fixing hole
2. Positioning hole
3. POWER indicator
4. Switch
5. Fool-proof groove
6. Terminal block
7. AC motor drive connection port
8-6-2 Terminal Specifications
Analog I/O
Extension Card
Terminals Descriptions
AI10, AI11
Refer to Pr.14-00–Pr.14-01 for function selection (input), and Pr.14-
18–Pr.14-19 for mode selection.
There are two sets of AI port, SSW3 (AI10) and SSW4 (AI11),
which can be switched to Voltage or Current mode.
Voltage mode: Input 0–10 V
Current mode: Input 0–20 mA / 4–20 mA
Analog voltage
frequency command
Impedance: 20 kΩ
Range: 0–10 V = 0–Max. Output
Frequency (Pr.01-00)
Switch: AI10 / AI11 Switch, default 0–10 V
Analog current frequency
command
Impedance: 250 Ω
Range: 0–20 mA / 4–20 mA = 0–Max.
Output Frequency (Pr.01-00)
Switch: AI10 / AI11 Switch, default 0–10 V

Table of Contents

Related product manuals