EasyManua.ls Logo

Delta VFD300C43A-21 - Page 22

Delta VFD300C43A-21
1259 pages
Print Icon
To Next Page IconTo Next Page
To Next Page IconTo Next Page
To Previous Page IconTo Previous Page
To Previous Page IconTo Previous Page
Loading...
Chapter 1 IntroductionC2000 Plus
1-13
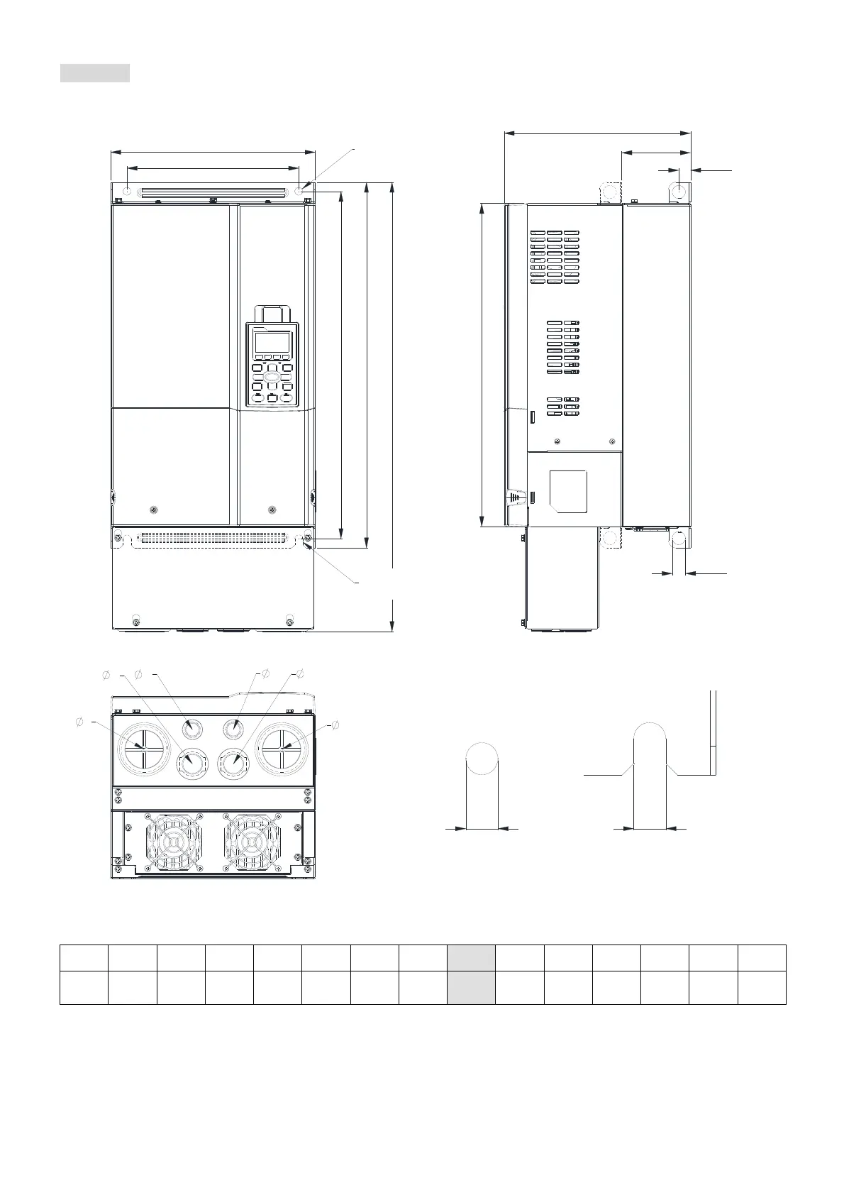
Frame D0
D0-2: VFD370C43S-21; VFD450C43S-21
3
2
1
1
2
3
DETAIL B
(MOUNTING HOLE)
DETAIL A
(MOUNTING HOLE)
S1 S1
H3
D2
S2
D1
D
SEE DETAIL B
SEE DETAIL A
H2
H1
H
W1
W
Figure 1-19
Unit: mm [inch]
Frame W H D W1 H1 H2 H3 D1* D2 S1 S2 Φ1 Φ2 Φ3
D0-2
280.0
[11.02]
614.4
[24.19]
255.0
[10.04]
235.0
[9.25]
500.0
[19.69]
475.0
[18.70]
442.0
[17.40]
94.2
[3.71]
16.0
[0.63]
11.0
[0.43]
18.0
[0.71]
62.7
[2.47]
34.0
[1.34]
22.0
[0.87]
D1*: Flange mounting
See Detail A
See Detail B
Detail A
(Mounting Hole)
Detail B
(Mounting Hole)

Table of Contents

Related product manuals