EasyManua.ls Logo

Delta VFD300C43A-21 - Page 30

Delta VFD300C43A-21
1259 pages
Print Icon
To Next Page IconTo Next Page
To Next Page IconTo Next Page
To Previous Page IconTo Previous Page
To Previous Page IconTo Previous Page
Loading...
Chapter 1 IntroductionC2000 Plus
1-21
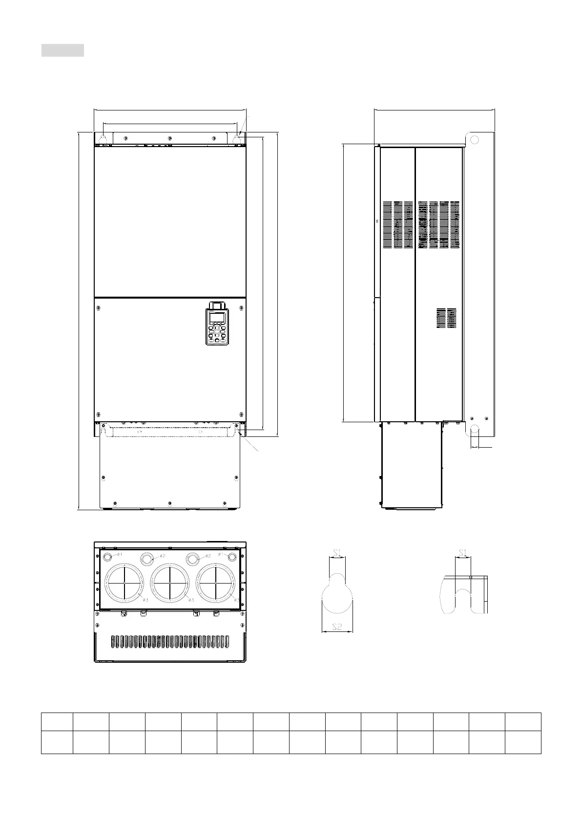
Frame G
G2: VFD1850C43A-21; VFD2000C43A-21; VFD2200C43A-21; VFD2500C43A-21; VFD2500C63B-21;
VFD3150C63B-21
W1
W
H2
H1
H
H3
D
S3
Figure 1-27
Unit: mm [inch]
Frame W H D W1 H1 H2 H3 S1 S2 S3 Ф1 Ф2 Ф3
G2
500.0
[19.69]
1240.2
[48.83]
397.0
[15.63]
440.0
[217.32]
1000.0
[39.37]
963.0
[37.91]
913.6
[35.97]
13.0
[0.51]
26.5
[1.04]
27.0
[1.06]
22.0
[0.87]
34.0
[1.34]
117.5
[4.63]
See Detail B
See Detail A
Detail A
(Mounting Hole)
Detail B
(Mounting Hole)

Table of Contents

Related product manuals