EasyManua.ls Logo

Delta VFD900CP43A-00 - Page 542

Delta VFD900CP43A-00
868 pages
To Next Page IconTo Next Page
To Next Page IconTo Next Page
To Previous Page IconTo Previous Page
To Previous Page IconTo Previous Page
Loading...
Chapter 12 Description of Parameter SettingsCP2000
12.1-12-14
Fixed Time circulation and Fixed quantity circulation with PID
This mode combines Fixed Time Circulation and Fixed Quantity Circulation with PID. This is to
prevent motors from becoming rusty if they are not in use for a long period of time. If some motors
are not activated, set the fixed time circulation to run the motors one by one to make sure each of
them is running.
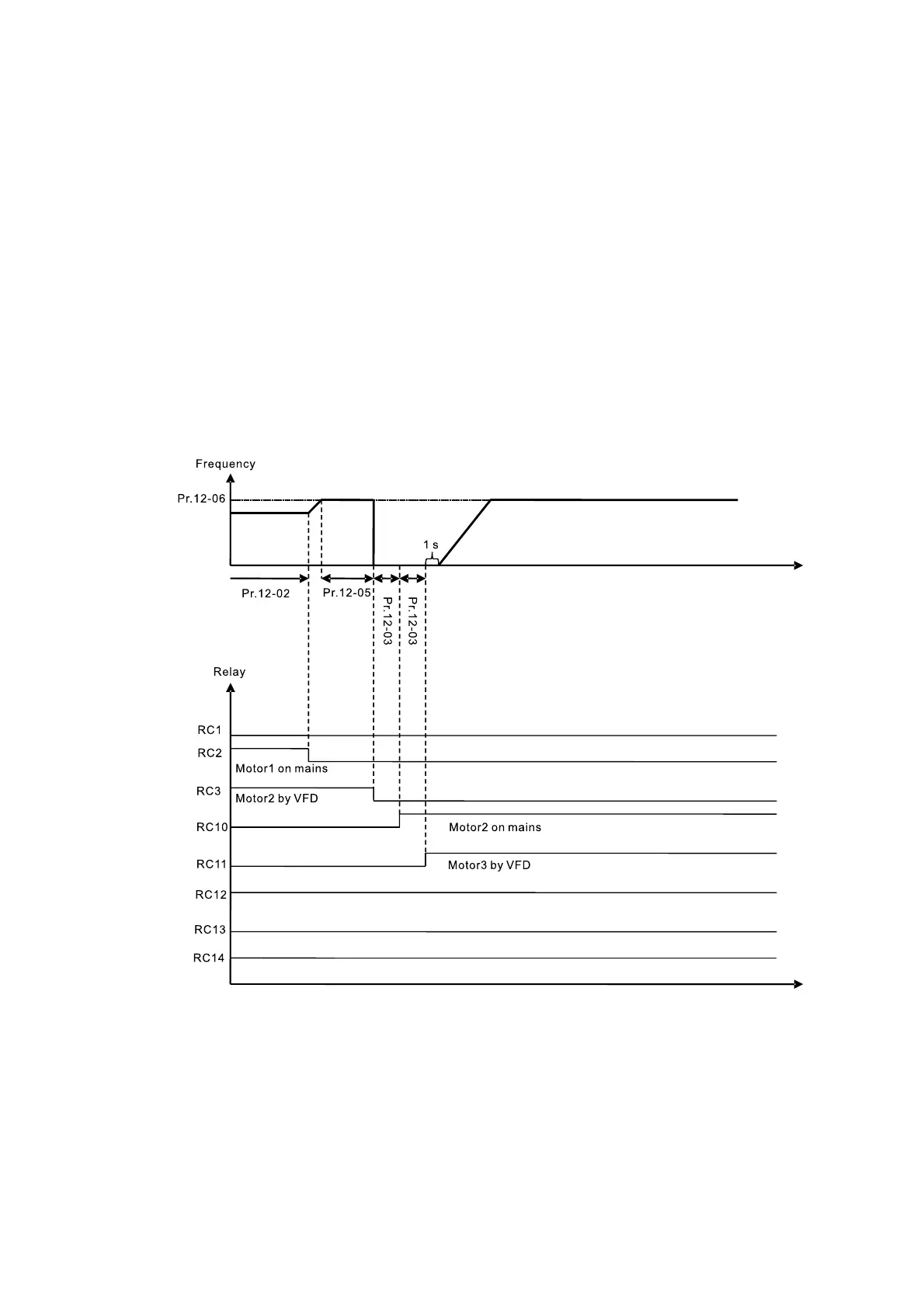
If all the motors are running and the water pressure is sufficient, the fixed time circulation is not
enabled. If motor 1 and motor 2 run to reach a balance in water pressure and the time reaches
the setting for Pr.12-02, motor 1 runs without using mains electricity (runs by the motor drive) and
motor 2 decelerates to stop.
When the motor 2 reaches the frequency setting at Pr.12-06 and the time setting for Pr.12-05, it
separates from the motor drive (runs on mains electricity). When time reaches the setting for
Pr.12-03, motor 2 runs using the mains electricity. Then when the time exceeds the setting for
Pr.12-03, motor 3 is enabled by the motor drive. The time sequence Diagram 12-13 is shown as
below.
Diagram 12-13 Fixed Time Circulation and Fixed Quantity Control with PID
Fixed Time Circulation and Fixed Quantity Control with PID
This mode combines Fixed Time Circulation and Fixed Quantity Control with PID. This is to
prevent motors from becoming rusty if they are not in use for a long period of time. If some motors
are not activated, set the fixed time circulation to run the motors one by one to make sure each of
them is running.

Table of Contents

Related product manuals