EasyManua.ls Logo

Deltech SPX FLOW HG50 - Air and Refrigerant Flow Schematics

Default Icon
12 pages
Print Icon
To Next Page IconTo Next Page
To Next Page IconTo Next Page
To Previous Page IconTo Previous Page
To Previous Page IconTo Previous Page
Loading...
9
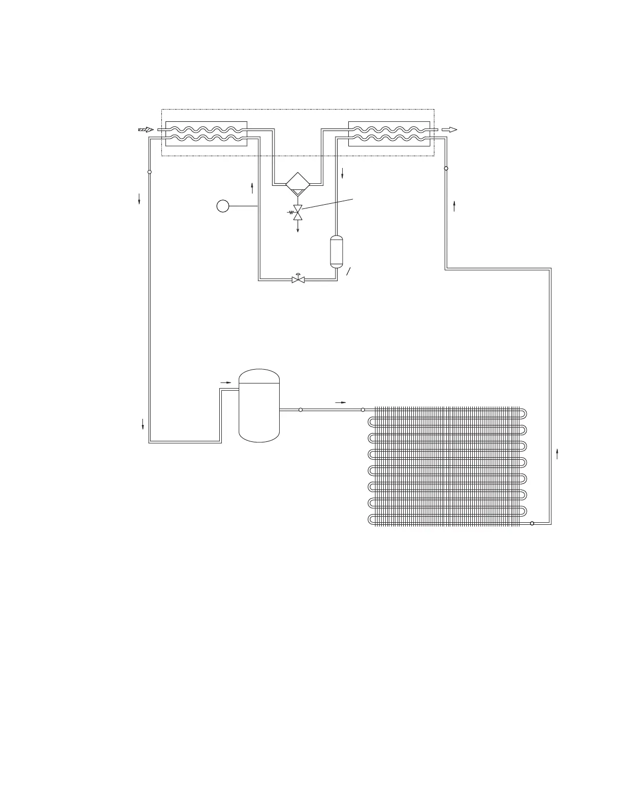
AIR AND REFRIGERANT FLOW SCHEMATICS
Figure 2
25-50 scfm models
HEAT EXCHANGER
REHEATER
AIR OUTLET
AUX. CONDENSER
CONDENSER
REF. COMPRESSOR
ELECTRONIC
DRAIN
VALVE
LIQUID RECEIVER
FILTER DRYER
CONSTANT PRESSURE
EXPANSION VALVE
DRAIN OUTLET
COLOR INDICATOR
C.I.
CHILLER
EVAPORATOR
AIR INLET

Related product manuals