EasyManua.ls Logo

Denon AVR-685 - Page 7

Denon AVR-685
75 pages
Print Icon
To Next Page IconTo Next Page
To Next Page IconTo Next Page
To Previous Page IconTo Previous Page
To Previous Page IconTo Previous Page
Loading...
7
AVR-1705/685
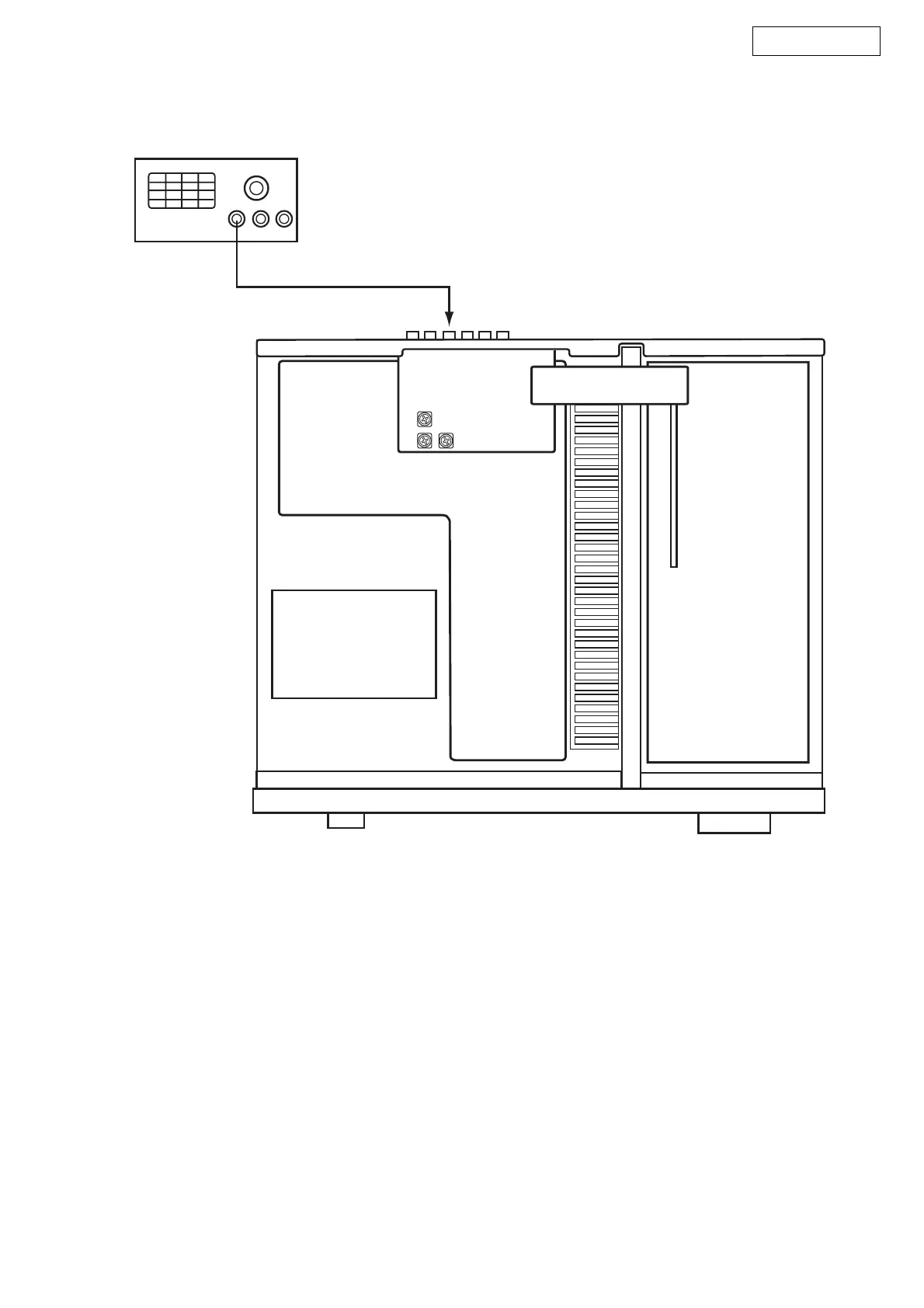
Oscilloscope
MONITOR OUT
(Y,Cb,Cr)
Video Section
VR601VR602
VR603
Cb
Cr
Y

Related product manuals