EasyManua.ls Logo

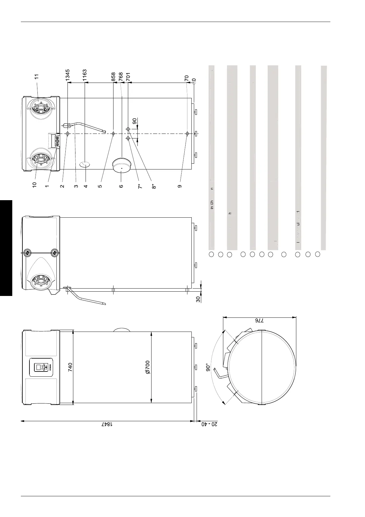
Dimplex DHW 300+ - Maßbild; Dimension Drawing; Schéma Coté

Dimplex DHW 300+
Print Icon
To Next Page IconTo Next Page
To Next Page IconTo Next Page
To Previous Page IconTo Previous Page
To Previous Page IconTo Previous Page
Loading...
A-II 451905.66.01 · FD 9505 www.dimplex.de
Anhang · Appendix · Annexes
DHW 300 - DHW 300+
1 Maßbild / Dimension drawing / Schéma coté
QXU9DULDQWH
PLW:lUPHHU]HXJHU
RQO\YHUVLRQZLWK
QGKHDWJHQHUDWRU
0RGqOHDYHFHJpQpUDWHXU
GHFKDOHXUXQLTXHPHQW
HOHNWULVFKH/HLWXQJVHLQIKUXQJHQ
:DUPZDVVHUDXVJDQJ5
.RQGHQVD
WVFKODXFK
.RUURVLRQVVFKXW]DQRGH
=LUNXODWLRQVOHLWXQJ
(OHNWULVFKHU+HL]VWDE
:lUPHWDXVFKHU(LQJDQJ
5S
:lUPHWDXVFKHU$XVJDQJ
5S
.DOWZDVVHU]XODXI5
(OHFWULFFDEOHHQWULHV
'RPHVWLFKRWZDWHURXWOHW5
&RQGHQVDWHKRVH
&RUURVLRQSURWHFWLRQDQRGH
&LUFXODWLRQSLSH
(OHFWULFKHDWLQJHOHPHQW
+HDWH[FKDQJHULQSXW
5S
+HDWH[FKDQJHURXWSXW
5S
&ROGZDWHULQOHW5
(QWUpHGHVFkEOHVpOHFWULTXHV
eYDFXDWLRQG¶HDXFKDXGH5
)OH[LEOHG¶pFRXOHPHQW
GHVFRQGHQVDWV
$QRGHDQWLFRUURVLRQ
&RQGXLWHGHFLUFXODWLRQ
&DUWRXFKHpOHFWULTXHFKDXIIDQWH
(QWUpHpFKDQJHXUWKHUPLTXH
5S
6RUWLHpFKDQJHXUWKHUPLTXH
5S
$OLPHQWDWLRQHQHDXIURLGH5


.R
Q
GH
Q
VD
W
VF
KO
DX
F
K
&
RQGHQVDWHKRVH
)O
H
[L
E
O
H
G
pFRX
O
H
P
H
QW
GHV
FR
Q
GH
Q
VD
W
V
H
O
H
N
WU
L
VF
K
H
/
H
L
W
X
Q
J
V
H
L
Q
I
K
U
XQ
J
H
Q
(O
HFWU
L
FFD
EO
HHQWU
L
HV
(
QWU
p
HGHVF
k
EOHV
p
OHFWUL
T
XH
V
:
lUPHWDXVF
K
HU
(L
Q
J
DQ
J
5S
+
HDWH[F
K
DQ
J
HU
L
QSXW
5
S
(
QWU
p
H
p
FKDQ
J
HXUWKHUPLTXH
5S
=
LUNXODWLRQVOHLWXQ
J
&
LUFXODWLRQ
S
L
SH
&
RQGXLWHGHFLUFXODWLR
Q
.D
O
W
Z
DV
V
H
U
]
X
O
DX
I
5
&
ROGZDWHULQOHW5
$
OLP
H
QW
D
WL
R
Q
H
Q
HDX
I
U
R
L
GH
5
/XIWHLQWULWW
/XIWDXVWULWW

$LULQOHW
$LURXWOHW
6RUWLHG¶DLU
(QWUpHG¶DLU



Table of Contents

Related product manuals