EasyManua.ls Logo

Dimplex LA 16 MI - Connection of the power supply to the Heat pump

Dimplex LA 16 MI
42 pages
Print Icon
To Next Page IconTo Next Page
To Next Page IconTo Next Page
To Previous Page IconTo Previous Page
To Previous Page IconTo Previous Page
Loading...
Page 27
.
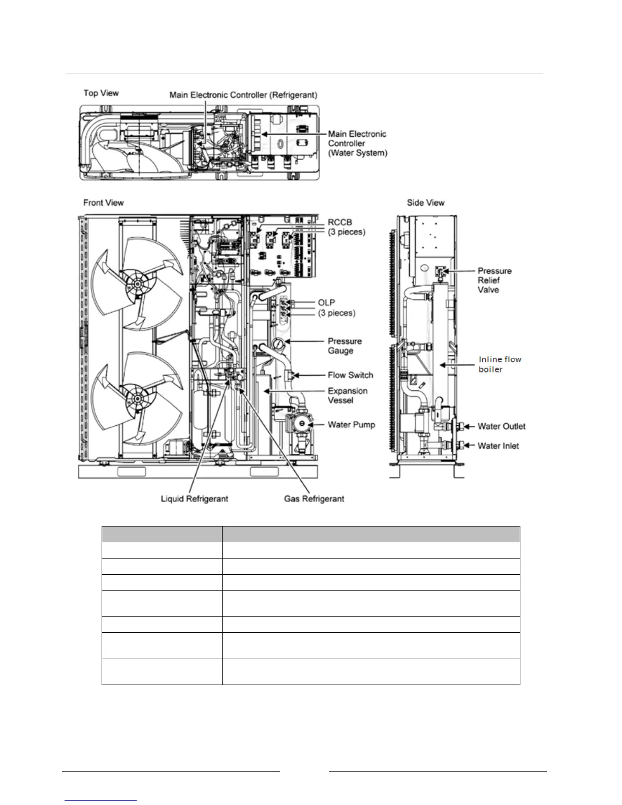
Section 9: Technical specification of the LA MI range
Component
Notes
Water Pump
Circulates water around the heating circuit.
Pressure Gauge
Gives the pressure of the water in the heating circuit.
Flow Switch
Checks the water flow in the heating circuit for efficient and safe operation.
Pressure relief valve
A safety device that relieves the pressure in the heating circuit if it exceeds
3 bar.
Inline flow boiler
Additional heating capacity for Bivalent operation.
OLP (Over load protection)
A safety device to prevent the inline flow boiler from overheating the
heating circuit.
Sledge
Two metal rails increase the structural integrity of the heat pump and
should not be removed.
Figure 24: Components of the LA 12 and 16 MI

Table of Contents

Other manuals for Dimplex LA 16 MI

Related product manuals