EasyManua.ls Logo

Dimplex LA 20AS - Bivalente Anlage mit Zwei Heizkreisen und Warmwasserbereitung; Bivalent System with Two Heating Circuits and Domestic Hot Water Preparation; Installation Bivalente Avec Deux Circuits de Chauffage Et Production D´eau Chaude

Dimplex LA 20AS
Print Icon
To Next Page IconTo Next Page
To Next Page IconTo Next Page
To Previous Page IconTo Previous Page
To Previous Page IconTo Previous Page
Loading...
www.dimplex.de A-XVII
Anhang · Appendix · Annexes
4.3
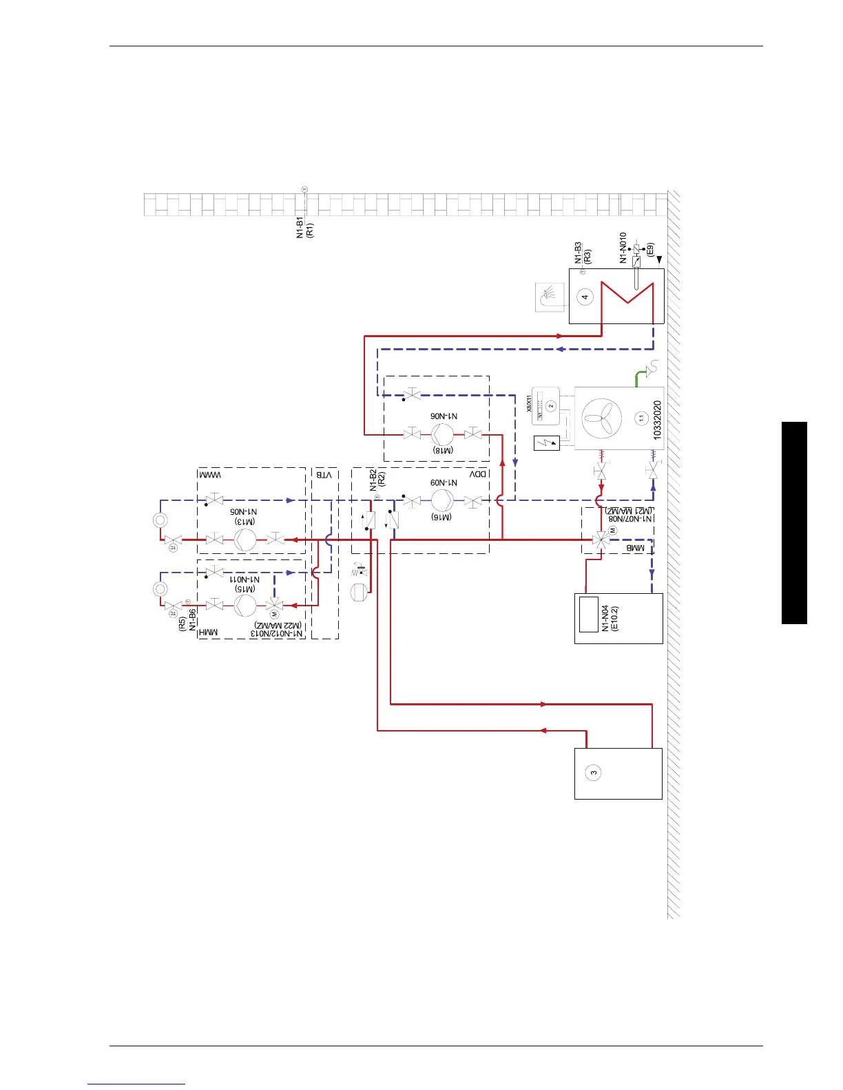
4.3 Bivalente Anlage mit zwei Heizkreisen und Warmwasserbereitung /
Bivalent system with two heating circuits and domestic hot water
preparation / Installation bivalente avec deux circuits de chauffage et
production d´eau chaude

Table of Contents

Other manuals for Dimplex LA 20AS

Related product manuals