EasyManua.ls Logo

Dimplex LI 20TE - Et Production D´eau Chaude; Bivalente Anlage mit Zwei Heizkreisen und Warmwasserbereitung; Bivalent System with Two Heating Circuits and Domestic Hot Water Preparation; Installation Bivalente Avec Deux Circuits de Chauffage Et Production D´eau Chaude

Dimplex LI 20TE
Print Icon
To Next Page IconTo Next Page
To Next Page IconTo Next Page
To Previous Page IconTo Previous Page
To Previous Page IconTo Previous Page
Loading...
A-XIV
Anhang · Appendix · Annexes
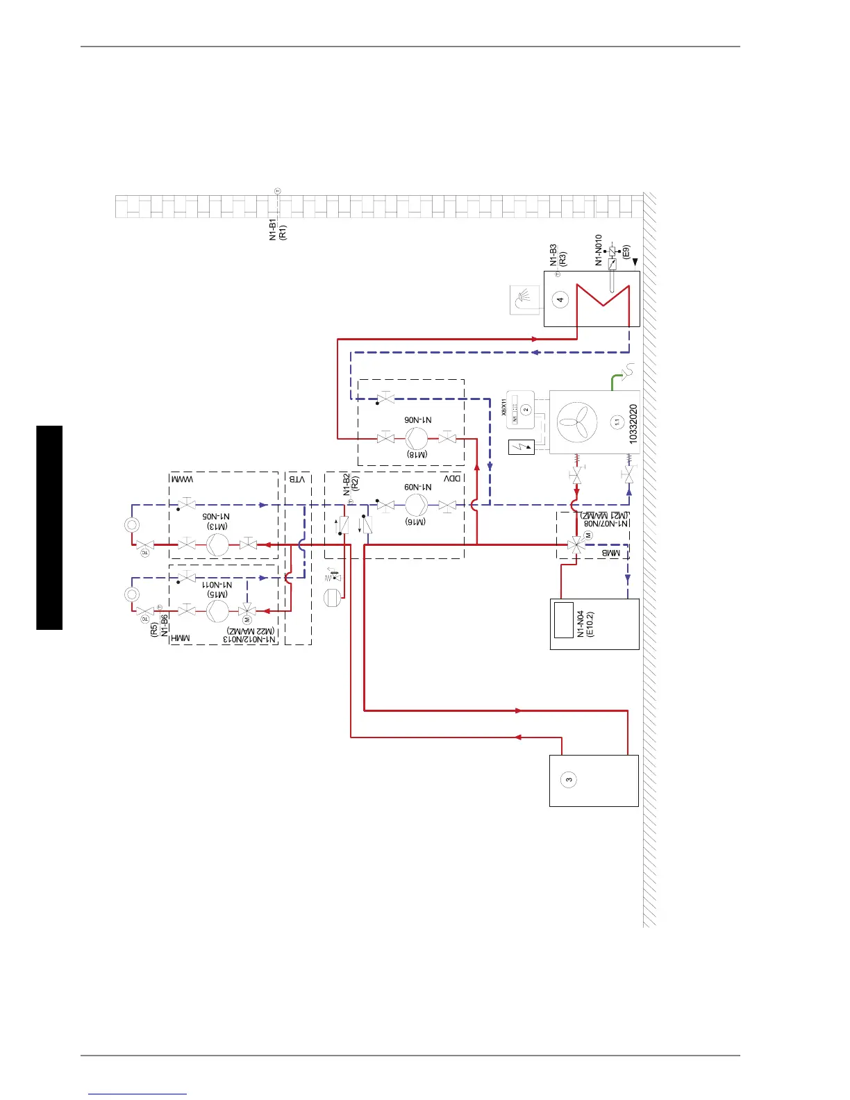
4.3
4.3 Bivalente Anlage mit zwei Heizkreisen und Warmwasserbereitung /
Bivalent system with two heating circuits and domestic hot water
preparation / Installation bivalente avec deux circuits de chauffage
et production d´eau chaude

Table of Contents

Related product manuals