EasyManua.ls Logo

Dimplex LI 20TE - Hydraulische Prinzipschemen; Hydraulic Plumbing Diagrams; Schémas Hydrauliques; Monoenergetische Anlage mit Zwei Heizkreisen; Mono Energy System with Two Heating Circuits;Installation Monoénergétique Avec Deux Circuits de Chauffage; Monoenergetische Anlage mit Zwei Heizkreisen

Dimplex LI 20TE
Print Icon
To Next Page IconTo Next Page
To Next Page IconTo Next Page
To Previous Page IconTo Previous Page
To Previous Page IconTo Previous Page
Loading...
A-XII
Anhang · Appendix · Annexes
4
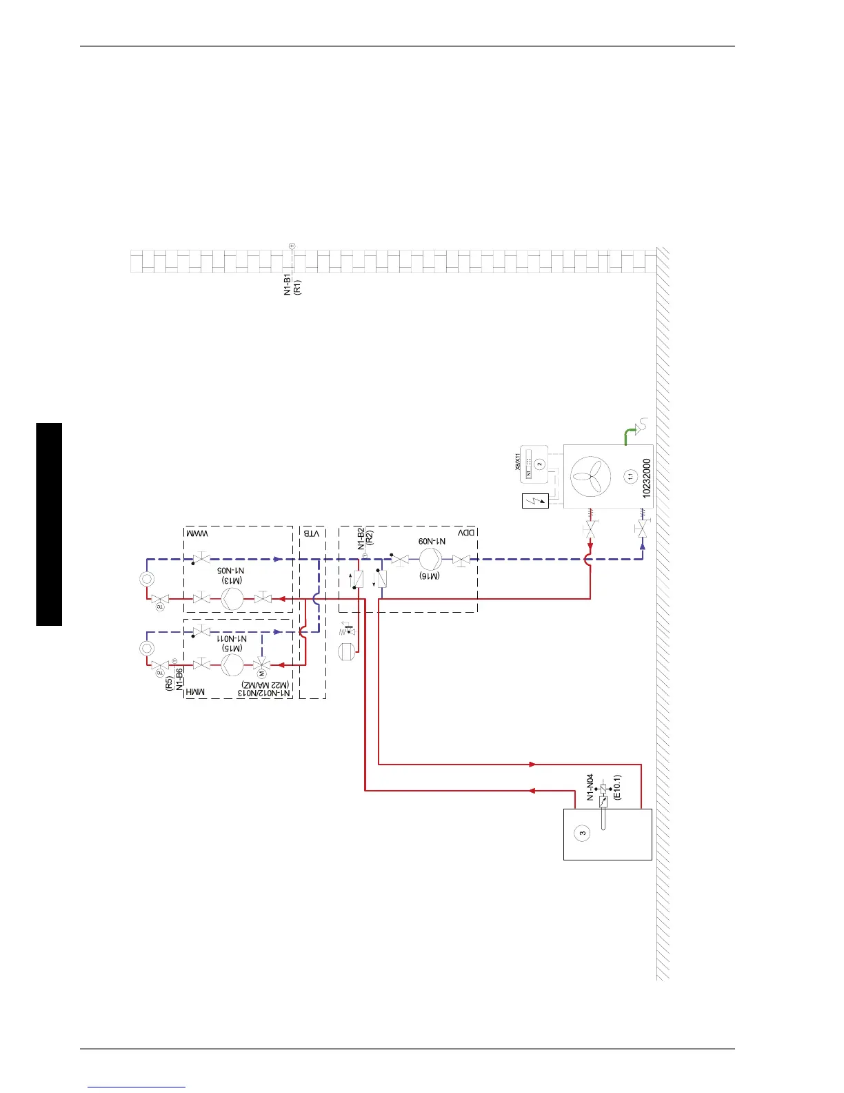
4 Hydraulische Prinzipschemen / Hydraulic Plumbing
Diagrams / Schémas hydrauliques
4.1 Monoenergetische Anlage mit zwei Heizkreisen / Mono energy system
with two heating circuits/Installation monoénergétique avec deux
circuits de chauffage

Table of Contents

Related product manuals