EasyManua.ls Logo

Dimplex NBDF2608 - Fireplace Installation

Dimplex NBDF2608
20 pages
Print Icon
To Next Page IconTo Next Page
To Next Page IconTo Next Page
To Previous Page IconTo Previous Page
To Previous Page IconTo Previous Page
Loading...
7
Fireplace Installation
WARNING: 







WARNING: 





WARNING: Do not attempt
to wire your own new outlets or



WARNING: 
-


CAUTION: 
-



insert directly on carpet or
similar surfaces which may
restrict air circulation.
CAUTION: If installing the





!
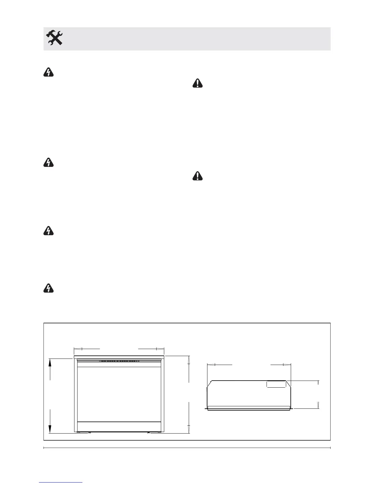
NOTE: The dimensions of the






Figure 1

(695 mm)

(580
mm)

(596 mm)

(222 mm)

(663 mm)

Other manuals for Dimplex NBDF2608

Related product manuals