EasyManua.ls Logo

DINGLI BA28RT - Page 84

DINGLI BA28RT
85 pages
Print Icon
To Next Page IconTo Next Page
To Next Page IconTo Next Page
To Previous Page IconTo Previous Page
To Previous Page IconTo Previous Page
Loading...
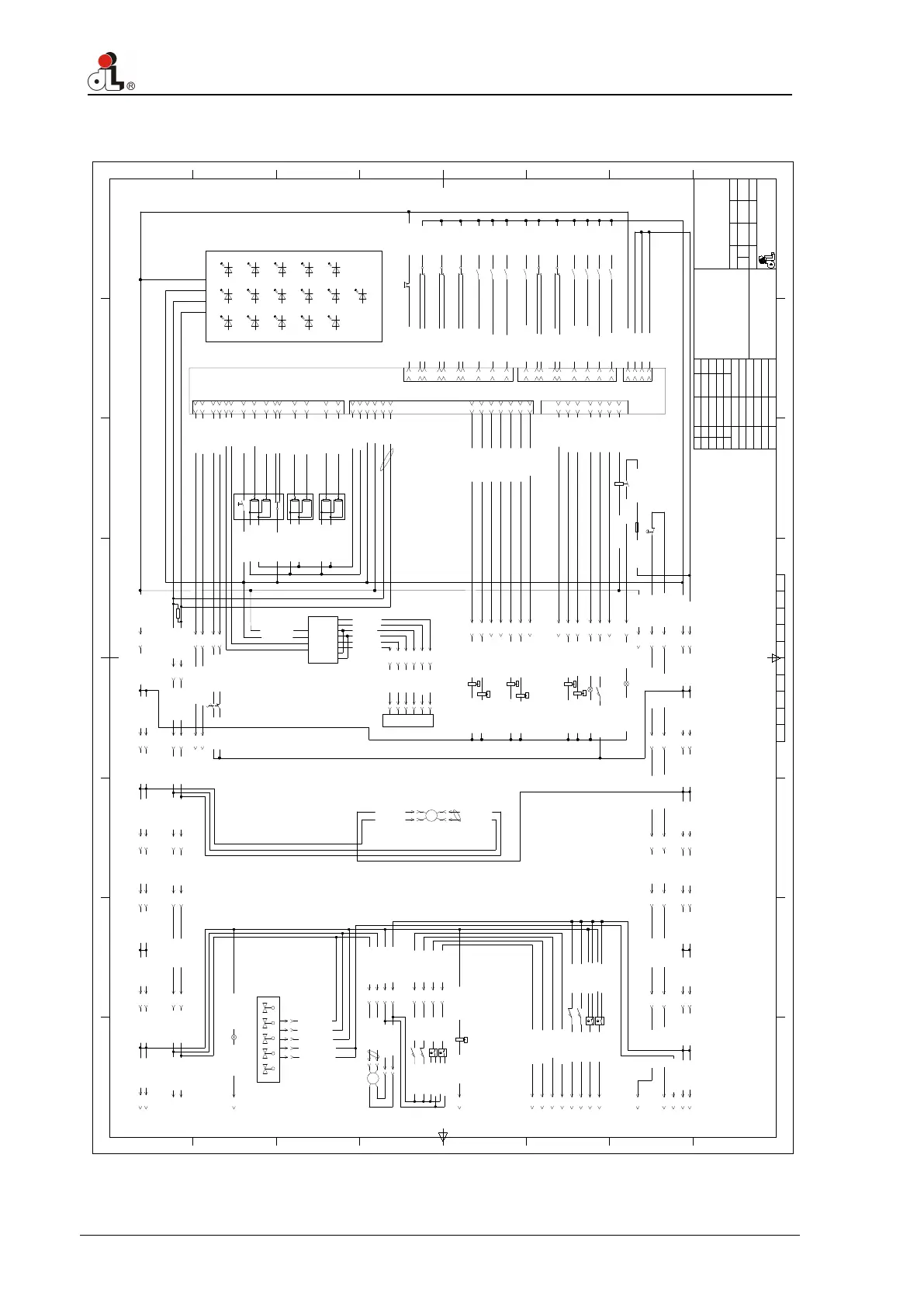
Schematic
80
U
20
S27
U
U
S
32
31
S231 RD/BU(20)
S232 BK/VT(20)
25
23
S225 YE(20)
S223 GN(20)
120Ω
CAN33H YE(20)
CAN33LGN(20)
1
21
S201 RD(16)
S221 BK(16)
T
7
14
S
19
38
T38 GN/WH(18)
SQ14
HL4
T239 GN/YE(18)
T238 GN/BU(18)
24-010 RD(18)
39
17
S2+ YE(23)
S2- PK(23)
P+ BN(23)
P- GY(23)
S1+ WH(23)
S1- GN(23)
3-P+ WH(20)
3-P- BK(20)
3-S1+ YE(22)
3-S1- GN(22)
U
S
T
U
T
11
12
U211 YE(20)
U212 GN(20)
U8 WH (20)
S26
50-010 RD (20)
8
1-510 RD/WH(20)
510 RD/WH(14)
55-010 RD(18)
57-GND BK(18)
X288-8
X288-7
X288-2
X288-1
52-010 RD(18)
52-GND BK(18)
CAN54H YE(18)
CAN54L GN(18)
CCR2
CAN56L GN(20)
CAN56H YE(20)
5
4
52-GND BK(20)
71-010 RD(20)
3
2
63-GND BK(14)
17
18
EVP10
S217 BN/GY(18)
S218 GN/RD(18)
22
23
U222 GY/BN(18)
U223 BU/WH(18)
1-S231 RD/BU(20)
1-S232 BK/VT(20)
3-S231 RD/BU(20)
3-S232 BK/VT(20)
X204-1
X204-2
X204-6
X204-5
X204-8
X204-7
X204-4
X204-3
X204-10
X204-12
X204-13
X203-1
X203-5
X203-4
31-GND BK(16)
X203-6
X203-7
X203-8
X203-9
X203-10
X203-11
X203-12
X203-14
X203-15
X203-16
X203-17
X203-18
X203-19
X203-20
X203-24
X203-25
3-S2+ YE(22)
3-S2- GN(22)
36-GND BK(20)
29-010 RD(20)
13
S213 WH(18)
X204-31
T225 WH(20)
25
X204-30
34-GND BK(18)
31-GND BK(18)
28-GND BK(18)
27-GND BK(18)
T219 GN/BK(18)
25-GND BK(18)
U222 GY/BN(18)
U223 GY/WH(18)X224-10
X224-11
2
6
4
5
1
3
21-010 RD(14)
20-010 RD(12)
22-010 RD(14)
23-010 RD(14)
X224-2
X224-1
20-GND BK(12)
22-GND BK(14)
23-GND BK(14)X224-4
X224-3
X224-7
X224-8
CAN46H YE(20)
CAN46LGN(20)
Footswitch
T17A BN(14)
X224-5
X224-6
4-020 GN/VT (14)
4-020A BU (14)
CAN7H YE(20)
CAN7LGN(20)
CAN3H YE(20)
CAN3LGN(20)
X228-8
X228-7
13-GND BK(14)
5-GND BK(14)
6-GND BK(14)
X228-3
X228-4
13-010 RD(14)
14-010 RD(14)
5-010 RD(14)
6-010 RD(14)
X228-2
X228-1
X228-5
X228-6
3-020 WH (14)
3-020A BU (14)
14-GND BK(14)
CBS1
12-010 RD(22)
12-GND BK(22)
3
2
CAN6L GN(22)
CAN6H WH(22)
4
5
CAN2H YE(20)
CAN2LGN(20)
3-GND BK(14)
4-GND BK(14)
X389-8
X389-7
X389-3
X389-4
63-010 RD(14)
64-010 RD(14)
3-010 RD(14)
4-010 RD(14)
2-020 WH(14)
2-020A BU(14)
X389-5
X389-6
X389-1
X389-2
1-GND BK(14)
2-GND BK(14)
X289-3
X289-4
CAN1H YE(20)
X289-8
CAN1L GN(20)
X289-7
1-020 WH(14)
X289-5
1-020A BU(14)
X289-6
1-010 RD(14)
X289-1
2-010 RD(14)
X289-2
53-GND BK(14)
50-GND BK(14)
X280-Q
54-GND BK(14)
51-GND BK(14)
X280-R
X288-5
X288-6
T34 WH(18)
T35 GN/YE(18)
T39 BU/RD(18)
T40 BU/WH(18)
T40 BU/WH(18)
T39 BU/RD(18)
T39 BU(20)
74-010 RD(20)
74-GND BK(20)
T40 BU(20)
75-010 RD(20)
75-GND BK(20)
HA4
N1
LS1
SQ5
SQ4
64-GND BK(14)
X280-A
X280-B
X280-D
X280-E
X280-F
X280-G
X280-J
X280-H
T38 OR/RD(18)
T29 WH/BK(18)
PVG Power
Platform Power 1
Platform Power 2
System Power Control Out
System Power Control In
Lower Boom Lift Down Proximity SWitch2
Lower Boom Lift Up Limit Switch 2
Lower Boom-In Limit Switch 2
Lower Boom Lift Down Proximity SWitch1
Lower Boom Lift Up Limit Switch1
Lower Boom-In Limit Switch 1
Main Boom Lift Down Proximity Switch 2
Main Boom Lift Down Proximity Switch 1
Hydraulic Generator ValveOption
CANL
CANH
Negative
Negative
Flashing Beacon
Beacon
Main Boom Length &
Angle Sensor
Platform Tilt Sensor
Jib Function Valve
Jib Level Valve
Turret Swing Valve
Main Lift Valve
Main Tele Valve
Head Light relay
Anti-Extrusion Switch
Deadman Switch
Walk signal A
Walk signal B
Steer Left Switch
Turret Swing Signal
Jib Lift Signal
Main Boom Telescope Signal
Main Boom Lift Signal
Steer Right Switch
F
G
H
D
C
B
E
A
D
C
B
A
H
G
F
E
21 3 4 6 7 8
5
1 2 3 6 7 8
标记
处数更改文件号
日期
Electrical
Schematic
3
3 D
SQ9
58-010 RD(18)
SQ8
57-010 RD(18)
X288-4
X288-3
T34 WH(18)
T35 GN/YE(18)
T35 BU(20)
73-010 RD(20)
T34 BU(20)72-010 RD(20)
SQ7
SQ6
00006819
Anti-Extrusion Warning Light
LED Panel
Overload
alarm LED
Overload
warning LED
System
Alarm LED
Chassis Tilt
Alarm LED
Front Axle
Aligned LED
Turret In Front
Position LED
Fuel Low
Level LED
Preheating
LED
Alternator
Running LED
Engine
Alarm LED
Power Engine
Mode LED
High Speed
LED
U Turn
Steer LED
Crab
Steer LED
Differential
Lock LED
Rear Axle
Aligned LED
U1
GND
+VA
SIG1
SIG2
+8V
AGND
H1
L1
+8V
AGND
H2
L2
4
1
2
3
P
27
17
18
25
1
2
5
6
POT3A
POT3B
JB3
23
24
33
34
27
28
29
30
40
T
16
U227 WH/RD(20)
HL1
This Electrical Diagram Is Suitable For Models
BA28RTBA24RT
U216 WH/RD(20)
U217 BN/BU(18)
U218 BN/WH(18)
U209 OR(20)
U210 PK(20)
U225 BN/BU(20)
U201 GY(20)
U202 BN/YE(20)
U205 BN/RD(20)
U206 BN/BK(20)
T223 RD/BK(20)
T224 BK/WH(20)
T233 GN/RD(20)
T234 WH(20)
T227 GN/RD(20)
T228 GN/BK(20)
T229 GN/VT(20)
T230 GN/BU(20)
T240 VT(20)
T216 RD/BU(20)
S21
S14
S17
S18
S15
S16
S20
S24
S29
S22
SB4
S24
14
EVP6
SB2
15
19
20
EVP7
EVP11
EVP10
EVP4
EVP5
U213 BN/YE(20)
U214 VT(20)
S23
5-020 WH (14)
23-010 RD(14)
030 RD(12)
30-GND BK(12)
37-GND BK(12)
1-030 RD 12)
2-030 RD 12)
3-030 RD 12)
S219 BU/BN(18)
S220 BN/RD(18)
T214 GN/VT(18)
T207 BN/BU(18)
S215 GN/VT(18)
S214 WH/VT(18)
S215 VT/GN(18)
S214 VT/YE(18)
S219 GN/BU(18)
S220 GN/VT(18)
55-GND BK (18)
KA6
T217 VT/YE(20)
FU13
10A
HL3
U220 GY(20)
31
32
POT1A
POT1B
U231 RD/WH(20)
U232 RD/GN(20)
JB1
33
34
POT2A
POT2B
U233 RD/YE(20)
U234 RD/BU(20)
JB2
5-020A BU (14)
U221 WH/VT(20)
S25
35-GND BK(20)
T207 BU/RD(18)
T214 RD/WH(18)
T219 BN/BK(18)
SQ10
SQ11
33-010 RD(20)
41-010 RD(20)
34-010 RD(20)
31-010 RD(20)
45-010 RD(20)
40-010 RD(20)
49-010 RD 20)
34-GND BK (20)
040 RD/WH(14)
T217 OR(14)
4-030 RD(14)
36-010 RD(20)
35-010 RD(20)
2-S231 RD/BU(20)
2-S232 BK/VT(20)
48-010 RD(20)
32-010 RD(20)
47-010 RD(20)
39-010 RD(20)
38-010 RD(20)
T26 BU/BK(18)
T27 WH/RD(18)
56-010 RD(18)
58-GND BK(18)
S4 BN/BU(18)
32-GND BK(18)
33-GND BK(18)
25-010 RD(18)
26-010 RD(18)
U217 GN/WH(18)
U218 BN/BU(16)
24-GND BK(14)
9
10
13
14
16
21
PLATFORM
MC2M
Alarm Buzzer
Engine Start/Stop Switch
Low Speed Switch
Crab Steer Switch
Emergency Pump Switch
Horn Switch
Head Light Switch
Anti-Extrusion Signal 1
Engine RPM Up Switch
Platform Level Up Valve
Jib Lift Up Valve
Platform Rotate Left Valve
Footswitch Signal 1
Footswitch Signal 2
Hydraulic Generator Start/Stop Switch(Option)
Platform Rotate Left Switch
Lower Boom Lift Up/extend Switch
Platform Auto Levelling Switch
Platform E-Stop
Load Sensor
differential Lock Switch
Engine RPM Down Switch
High Speed Switch
U Turn Steer Switch
Platform Rotate Right Valve
Platform Level Down Valve
Jib Lift Down Valve
Platform Rotate Right Switch
Lower Boom
Lift Down/Retract Switch
Load Sensor
Amplifier
Anti-Extrusion Warning Light
Head Light
Constraint Switch
X280-N
X280-L
X280-M
X280-O
X280-P
X281-B
X281-A
X280-S
X280-K
53-010 RD(14)
54-010 RD(14)
50-010 RD(14)
50-010 RD(14)
6-020 RD/BK (14)
6-020A WH/VT(14)
CAN53H YE(20)
CAN53LGN(20)
CAN51H YE(20)
CAN51LGN(20)
T107 WH(18)
56-GND BK(18)
EVD11
PVG
59-GND BK(20)
3
CAN52H YE(20)
4
CAN52L GN(20)
5
1
2-510 RD/WH(20)
2

Related product manuals