EasyManua.ls Logo

DINGLI S0812E - Page 89

Default Icon
95 pages
Print Icon
To Next Page IconTo Next Page
To Next Page IconTo Next Page
To Previous Page IconTo Previous Page
To Previous Page IconTo Previous Page
Loading...
OPERATOR’S MANUAL with Maintenance Information
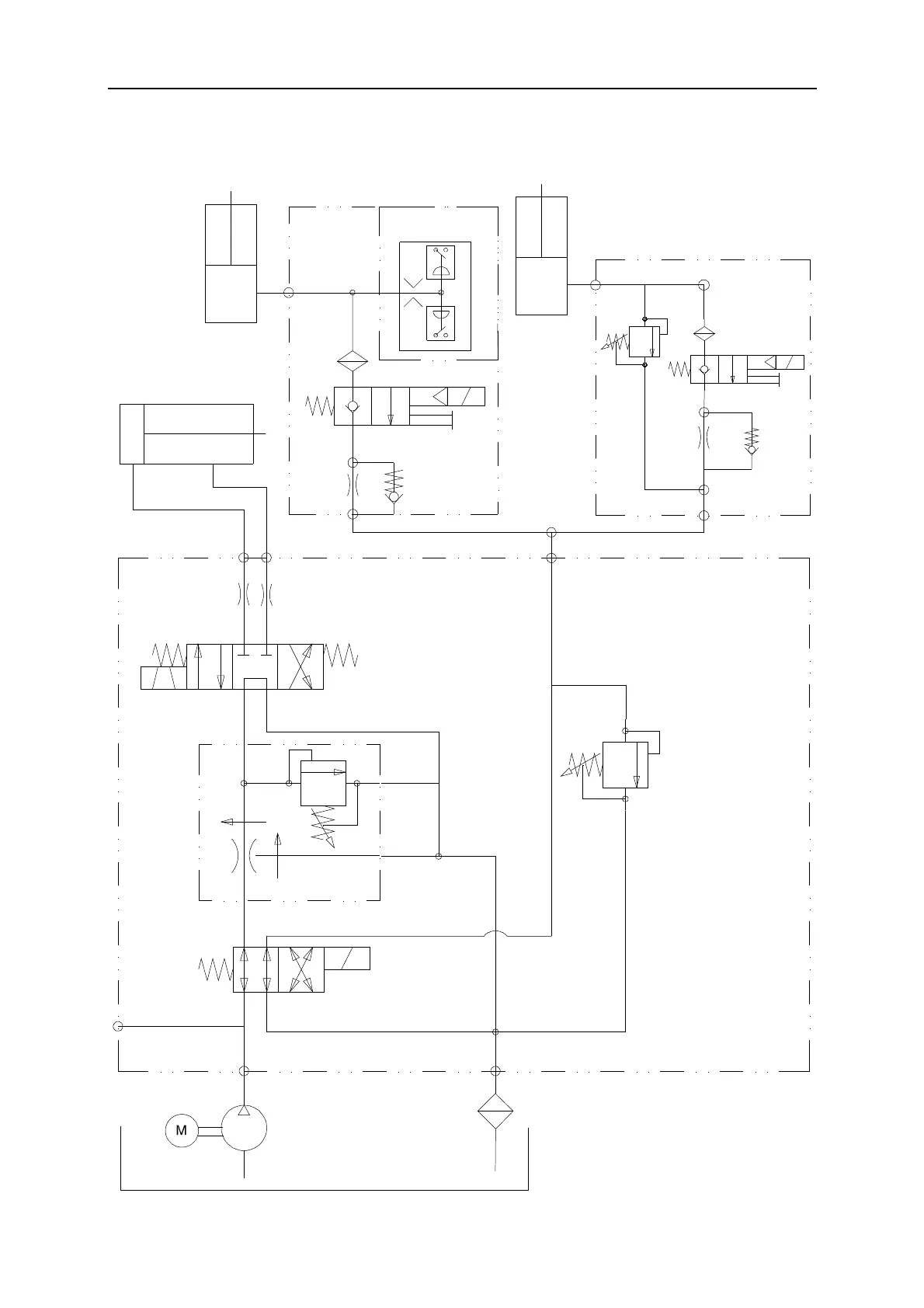
Schematic
85
S1012E S1212E
Upper lift
cylinder
Tank
Pump
5802-4-12
Function valve DPH-0918-10
1mm
1mm
1.5mm
0.9mm
120bar
Lower valve
NBCY-1001A-11
Lower valve
NBCY-1001B-11
RV1=150bar(S1012E)
RV1=190bar(S1212E)
Platform loading
Option
Steer cylinder
Lift cylinder
T
P
M
SV2
FRRV1
SV1
S1
S2
L

Related product manuals