EasyManua.ls Logo

DINGLI S1412-EXC - Page 93

Default Icon
95 pages
Print Icon
To Next Page IconTo Next Page
To Next Page IconTo Next Page
To Previous Page IconTo Previous Page
To Previous Page IconTo Previous Page
Loading...
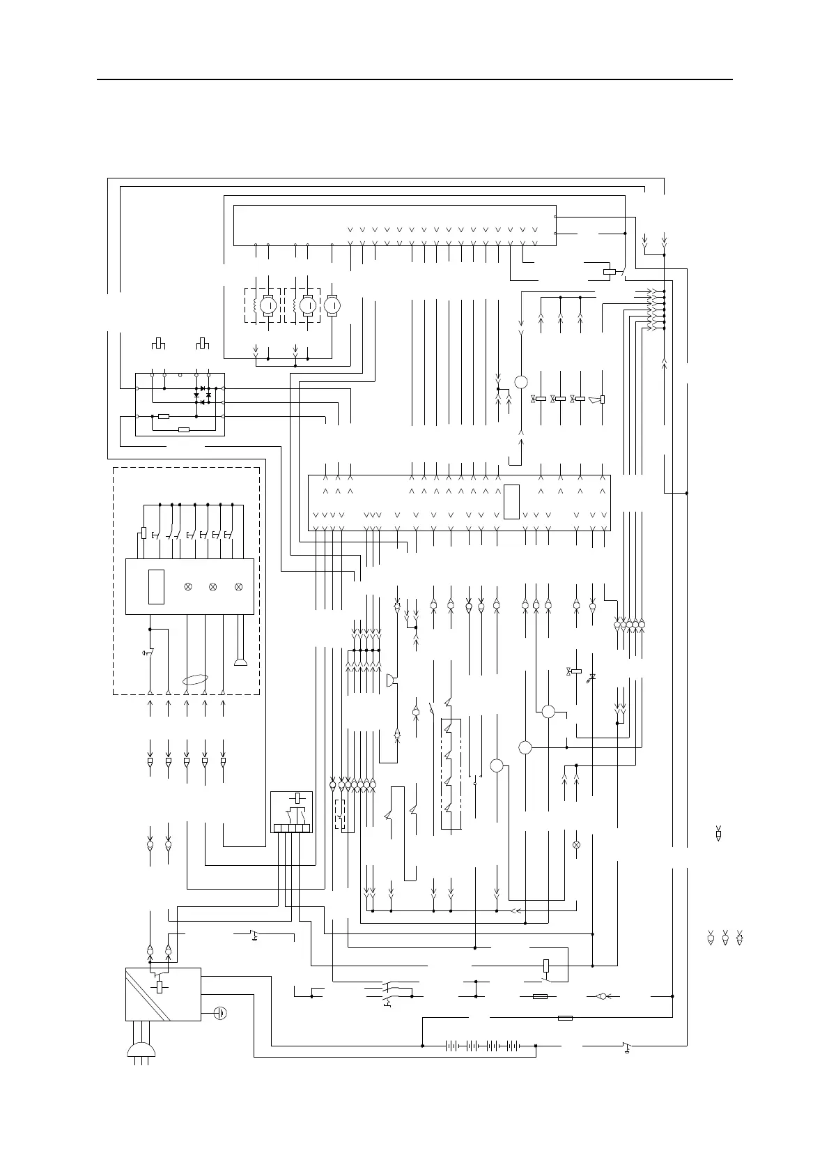
OPERATOR’S MANUAL with Maintenance Information
Schematic
89
S0608E S0808E S0812E S1012E
Pump Motor
Drive Motor
Drive Motor
Excitation
Excitation
刹车线
刹车线
10B WH/BU(16)
B+-B RD(16)
EXCITATION BU/RD(16)
BK(2)
BK(2)
BU(16)
BK(2)
BU(16)
RD(2)
BU(16)
RD(2)
BU(16)
M1
M2
M3
RD(2)
RD(16)
BK(16)
BK(16)
RD(16)
4
7
2
1
3
586
109
BM1
2k
?
R2
2k
?
R1
010A-6 RD(16)
GND-11 BK(16)
GND-1 BK(16)
=16 Position DELPHI Connector LOC2
=16 Position DELPHI Connector LOC3
=2 Position AMP Connector LOC4
=5 Position SIBAS Connector LOC7
NOTE:ALL WIRES ARE 18AWG OR 0.8mm
2
UNLESS NOTED OTHERWISE
k
F
2
4
Pothole Switch
1A RD/BU(18)
1A
s
Right Pothole Switch
10B-2 WH/BU(18)
B2
Buzzer
2
1
E
F
J
D
E
H
G
L
K
M
L
010A-1 BN/WH(16)
010A-11 RD(18)
RD(22)
RD(22)
B-3 BK(20)
010-5 RD/BU(16)
010-2 RD/BU(16)
010-3 RD(14)
SA1
Key Switch
GB1
GB2
GB3
GB4
Battery
6V
RD(2)
BK(2)
FU1 300A
001 RD(14)
001 RD(14)
010-3 RD(14)
010-4 YE(14)
010A-2 YE(16)
FU2 7A
KA1
Relay
SB1
Power
Switch
A
HL1
010A-14 RD(20)
B-2 BK(20)
Beacon
GND-1 BK(16)
GND BK(14)
RD(2)
BK(2)
Anti-Collision Switch (Option)
Up
Down
SA2
1
3
2
TILT
Tilt Sensor
Angle Sensor
AS1
Pressure Sensor
LS1
A
B
C
1
3
2
BK(22)
Lift Down Valve
YV2
HL2
Overload Indicator
M
N
N
P
R
SQ2
Lift Down Limit Switch
Lift Up Limit Switch
12C GN/BU(18)
11B BU/RD(18)
12B BN/WH(18)
12A BN/GY(18)
11C GN/VT(18)
4B WH/VT(18)
11A GN/YE(18)
3C GN/RD(18)
6B WH /BU(18)
3A BN/YE(18)
3B BN/BK(18)
10B-1 WH/BU(16)
10B WH/BU(16)
9B WH/BK(16)
12C GN(20)
11B WH(20)
12A BN/GY(16)
12B BN/WH(16)
11C GN/VT(18)
WH+GN(22)
WH+GN(22)
BU(20)
RD(20)
3A BN(18)
BK(22)
B BK(20)
BU(20)
GND-3 BK(16)
GND-2 BK(16)
1B
1C
2B
2C
4A
5A
9B
10B
12C
11B
12B
12A
11C
4B
11A
3C
6B
3A
3B
10C
9C
10A
8C
6C
9A
4C
7A
5B
5C
8A
6A
7B
7C
8B
GND-2 BK(18)
GND-7 BK(18)
GND-8 BK(18)
GND-9 BK(18)
数字指示
ECU
10C GN/VT(16)
9C BU/RD(16)
10A GN/BU(16)
8C WH/VT(16)
6C BN/GY(16)
9A BN/BK(16)
4C GN/WH(16)
7A BN/WH(16)
5B GN/RD(16)
5C BN/YE(16)
8A-1 BN/GN(16)
8A-2 BN/GN(16)
1
2
Hourmeter
HM
6A VT/YE(16)
7B WH/BU(16)
7C WH/BU(16)
8B BN/RD(16)
B- BK(14)
BK(2)
YV1
YV3
YV4
B1
GND-3 BK(16)
GND-4 BK(16)
GND-5 BK(16)
GND-6 BK(16)
Lift Up Valve
Steer Left Valve
Steer Right Valve
Horn
GND-3 BK(16)
GND-10 BK(16)
CONTROL+ RD/BU(16)
CONTROL- BU(16)
KM1
DC Contactor
GND-11 BK(16)
GND-1 BK(16)
RD(2)
B+ B-
Trac Enable
Forward
Reverse
Trac Speed
MC Speed
Brake
Blink Code Input
MC Enable
8C WH/VT(16)
6C BN/GY(16)
9A BN/BK(16)
4C GN/WH(16)
7A BN/WH(16)
5B GN/RD(16)
5C BN/YE(16)
8A BN/GN(16)
11
10
15
34
25
14
5
4
3
2
9
8
17
1
12
P
T2
F2
T1
F1
MC1
Power
Temperature sensor
module (optional)
+
-
B
COM
K
110-220VAC Input
L
N
PE
Charger
+
-
010A-7 BU/RD(16)
010-5 RD/BU(16)
010A-1 GN/WH(16)
010B BU/RD(16)
1C GN/RD(16)
1B GN/YE(16)
GND-1 BK(16)
GN(18)
RD(18)
BU(18)
YE(18)
WH(18)
JS1
SB4
S2
SB5
SB6
SB7
SB8
Joystick
Drive Joystick Deadman
Steer Left
Steer Right
Lift Enable
Drive Enable
Low Speed
Horn Switch
Platform Ccntrol Module
PCU
LED
Lift Indicator
Drive Indicator
Low Speed Indicator
SB3
Platform E-STOP
CAN_L
CAN_H
B3
Buzzer
s
C
K
J
4
3
5
2
1
4
3
5
2
1
010A-6 BU/RD(16)
SB2
Ground E-STOP
010-1 BU/RD(16)
010A BN/RD(16)
010A-2 YE(16)
010A-4 RD(20)
010A-5 RD(20)
010A-10 RD(20)
Left Pothole Switch
SQ4
B-1 WH(20)
SQ3
5A- 2 RD(18)
010A-2 RD(18)
010A-3 RD(18)
010A-4 RD(18)
010A-5 RD(18)
B+-A RD(16)
FootSwitch(Option)
B
F
A
B
C
D
010-1 BU/RD(16)
010 BN/GN(16)
1B GN/YE(16)
1C GN/RD(16)
2B GN/RD(18)
010A-6 RD(16)
B+-B RD(16)
2C RD(16)
4A RD(16)
5A-1 RD(16)
010A-12 RD(20)
010A-13 RD(20)
SQ5 SQ6 SQ7 SQ8 SQ1
10B-2 WH/BU(20)

Related product manuals