EasyManua.ls Logo

DLS CA22 - Tools and Materials Needed; Amplifier Installation Kit; Routing Wires

DLS CA22
16 pages
Print Icon
To Next Page IconTo Next Page
To Next Page IconTo Next Page
To Previous Page IconTo Previous Page
To Previous Page IconTo Previous Page
Loading...
Tools and material needed
Tools:
Flat and Phillips screwdrivers
Wire cutter
Wire stripper
Electric drill with drills
Crimping tool
Digital multimeter or test lamp
Wire brush, scraper or a piece
of an abrasive sheet to remove
paint for a good ground connection
Grease to protect the ground
connection from oxidation
Material:
Speaker wire: minimum
12 AWG = 4 mm
2
for subwoofers
13 – 16 AWG = 1,5-2,5 mm
2
for other
speakers
Sheet metal screws for mounting the
amplifier to the amplifier board and the
amplifier board to the car + some extra
for fuse holder, amplifier ground etc.
Electrical insulation tape
½ inch thick plywood or particle board for
the amplifier to be mounted upon.
Amplifier installation kit:
If available,buy an amplifier installation kit. It
contains normally all you need. This is what you
have to buy if you buy the items separately
20- 25 feet = 6- 7.5 meter power cable,
minimum AWG 8 = 10 mm
2
or heavier
1 pc of fuseholder to install close to the
car battery + fuse 50 Ampere.
20 feet of AWG 15 = 1,5 mm
2
wire for
remote turn on / off cable from radio.
RCA-cable for input from radio.
- 20 feet or 5 meter for trunk installations
-12 feet or 2 – 3 meter for under seat
installations
Two ring crimp terminals –one
for connection to the battery plus and one
for the amplifier ground connection.
Two heavy fork crimp terminals to connect
+ and – to amplifer – but you do only need
them if you use heavy cable or to make the
installation look nicer.
Four to ten fork crimp terminals to
connect the speaker cables – but you do
only need them if you use heavy cables or
want the installation to look nicer.
One fork crimp terminal to connect the
remote wire to the amplifier, but you need it
only to make it look nicer.
Four to eight splicers to connect speaker
cables to high level input cable, if high level
input is used.
Wire ties
Insulating grommet or insulating tube
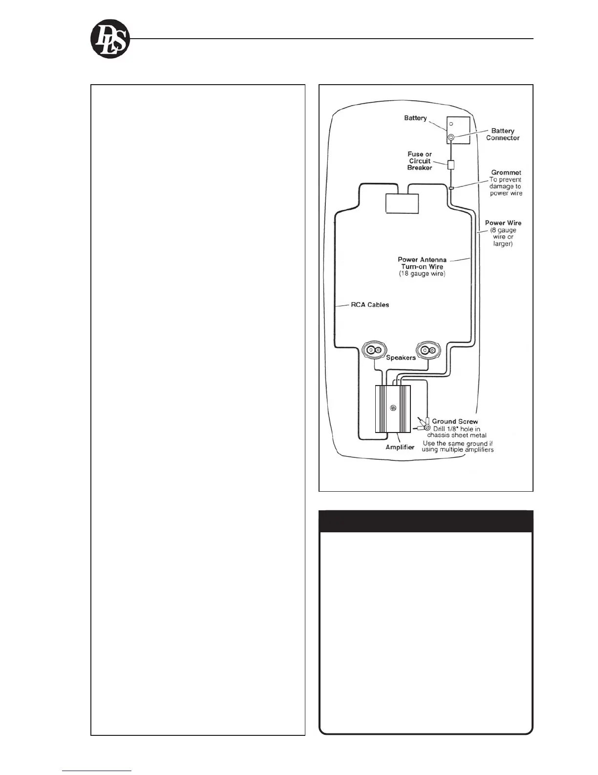
Routing wires
Stereo
head unit
3
Professional Tip:
If amplifier installation kits are available with diffe-
rent size of power cable, chose the most heavy
power cable to improve sound quality and to allow
more amplifiers to be installed now or later.
If possible buy AWG 4 = PL 21 mm
2
cable for best
performance.
These are the minimum sizes we recommend for
the different models:
CA22 10 mm
2
(7AWG)
CA23 16 mm
2
(5AWG)
CA31 21 mm
2
(4AWG)
CA41 21 mm
2
(4AWG)
CA51 21 mm
2
(4AWG)
This is for cable lengths up to 5 meters.
The ground cable must have the same size.
CA22, 23, 31, 41 & 51

Related product manuals