EasyManua.ls Logo

Dometic 3000 - Page 20

Dometic 3000
24 pages
Print Icon
To Next Page IconTo Next Page
To Next Page IconTo Next Page
To Previous Page IconTo Previous Page
To Previous Page IconTo Previous Page
Loading...
20
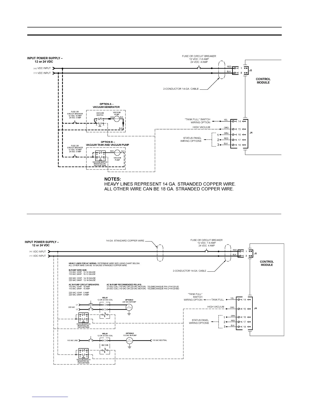
M-SERIES VACUUM PUMP AC CIRCUIT OPTION
MARINE WIRING DIAGRAMS (cont’d)
VACUUM GENERATOR/VACUUM TANK AND PUMP OPTION

Related product manuals