EasyManua.ls Logo

Doosan D1146 - Lubricating System; General descriptions; Diagram of lubricating system

Doosan D1146
179 pages
Print Icon
To Next Page IconTo Next Page
To Next Page IconTo Next Page
To Previous Page IconTo Previous Page
To Previous Page IconTo Previous Page
Loading...
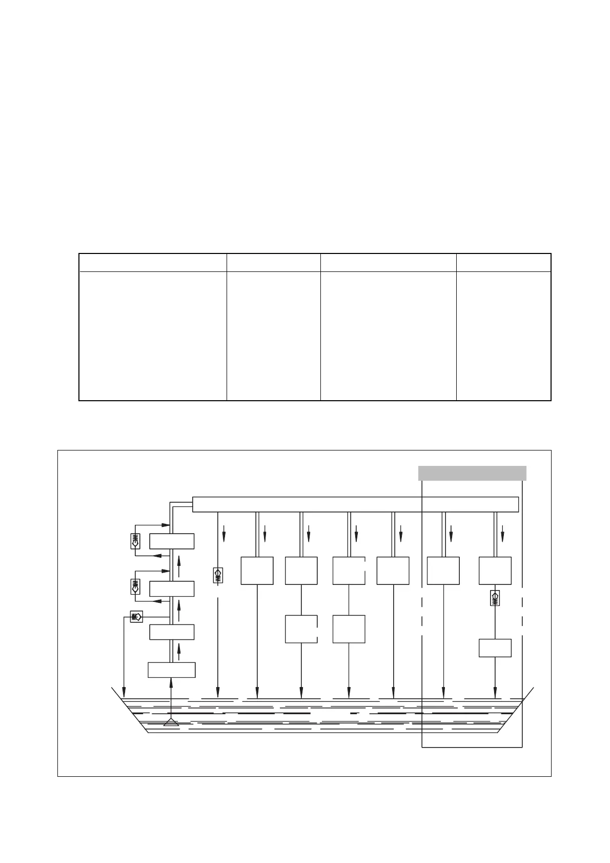
10.2. Lubricating System
10.2.1. General descriptions
General descriptions
All the engine oil pumped up from the oil pan by the gear type oil pump is filtrated through
the oil cooler and oil filter, and this filtrated oil is forced through the main oil gallery in the
cylinder block from where it is distributed to lubricate the various sliding parts, and fuel injec-
tion pump in order to ensure normal engine performance.
Specifications
Diagram of lubricating system
- 125 -
Item Specifications Item Specifications
Lubricating system Forced pressure Oil filter type Full flow
circulation
Oil pump type Gear type Bypass for filter element
Relief valve opening pressure 10 ± 1.5 kg/cm
2
Valve opening pressure
1.8 ~ 2.3 kg/cm
2
Bypass for oil cooler Bypass for entire oil filter
Opening pressure 5+1 kg/cm
2
Valve opening pressure
4.0 ~ 4.8 kg/cm
2
Adjusting valve for spray nozzle
Opening pressure
1.5 ~ 1.8 kg/cm
2
CYLINDER BLOCK MAIN GALLERY
OVER FLOW VALVE
BYPASS VALVE
RELIEF VALVE
OIL FILTER
OIL COOLER
OIL PUMP
OIL STRAINER
REGULATING VALVE
OIL PAN
IDLE GEAR
(TIMING)
CAM SHAFT
BRG.
CRANK SHAFT
BRG.
INJECTION
PUMP
TURBO
CHARGER
OIL SPRAY
NOZZLE
PISTON
CYL. HEAD
VALVE SYSTEM
CON-ROD
BRG.
ED7OM001
D1146T/P086TI/PU086T

Related product manuals