EasyManua.ls Logo

Doyon JA4 - Page 59

Doyon JA4
70 pages
Print Icon
To Next Page IconTo Next Page
To Next Page IconTo Next Page
To Previous Page IconTo Previous Page
To Previous Page IconTo Previous Page
Loading...
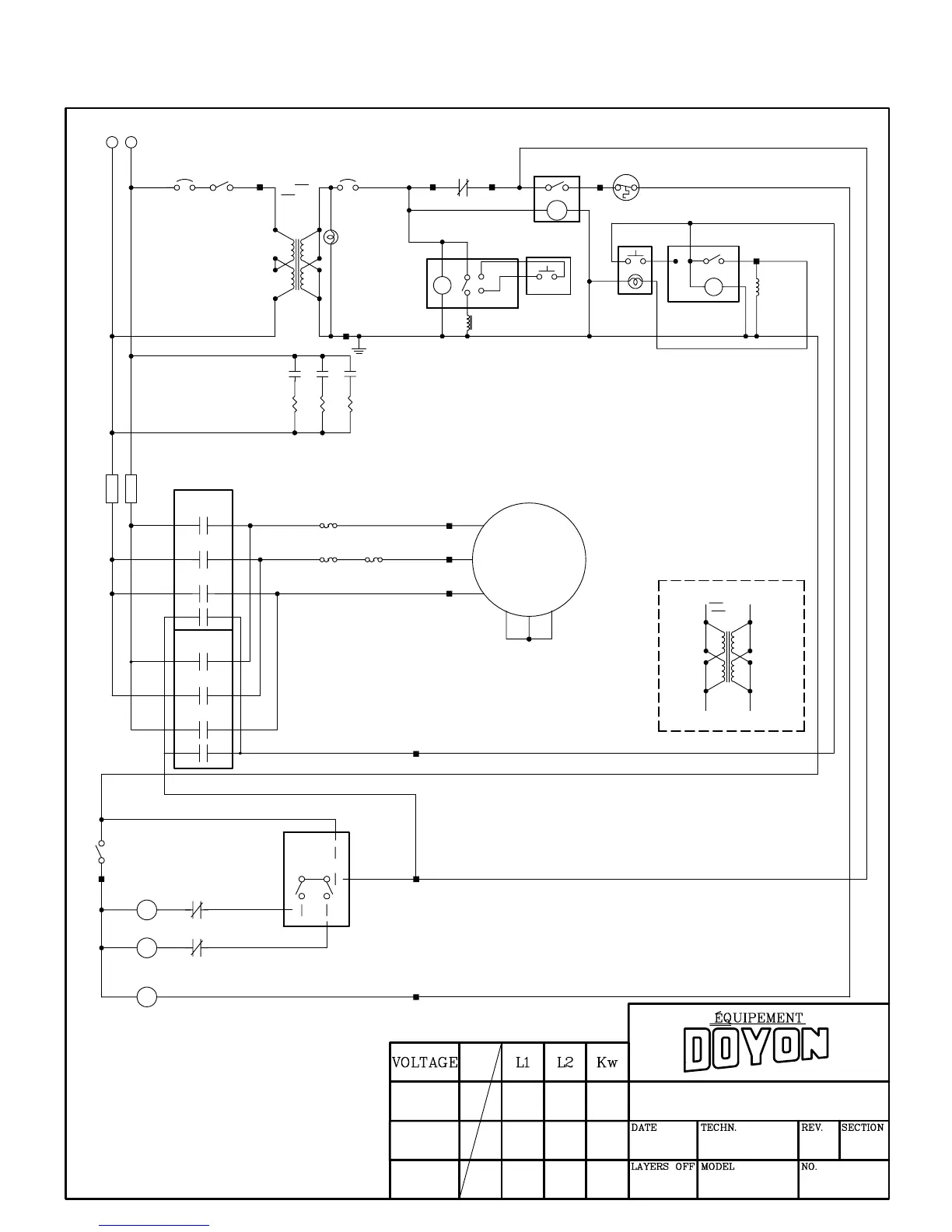
G6
2 A.
X1H1
H3
H4
H2 X2
X4
X3
240−480V>
120−240V
100 VA
N1
MODE E
TV
B1 15
A2
18
A1
BUZZER
VL
VALVE
OVEN
LIMIT
HIGH
7 8
9 10
HL1
H1
X4
F2
L2
120−240V
120−240V>
H1
H2
X1
X2
X4H4
H3 X3
ALTERNATE TRANSFORMER
250 VA
AV
AR
A1
A2
A1
A2
ST
AV
AR
2
1
34
L3 T3
T5
T4
T1
T3
T8T2
C1
C1
VA
ST
VA
OL1
L1
OL1
95 96
SWITCH
OVEN
BULB
F1
AV
AR
L2 T2
L1 T1
L3 T3
L2 T2
L1 T1
L1 T1
L2 T2
L3 T3
C1
C1
A2A1
ELECTRONIC
TIMER
COOKING
SWITCH
COOKING TIMER
H5CX (MODE A−1)
M
1
4
6
8
7
2
5 A.
STEAM TIMER H3DE
THERMOSTAT
2.5KW − 240V
2.1KW − 220V
EACH
ELEMENT
3/4HP
MOTOR
DOOR
SWITCH
220 32A 32A 7Kw
240 33A 34A 8Kw
JA4SC 1 PHASE 60 Hz
23/08/04 M. FAUCHER 5
NONE
STANDARD
JA4SC1R1
1 / 1
208 38A 38A 8Kw

Related product manuals