EasyManua.ls Logo

Doyon JA4 - Page 64

Doyon JA4
70 pages
Print Icon
To Next Page IconTo Next Page
To Next Page IconTo Next Page
To Previous Page IconTo Previous Page
To Previous Page IconTo Previous Page
Loading...
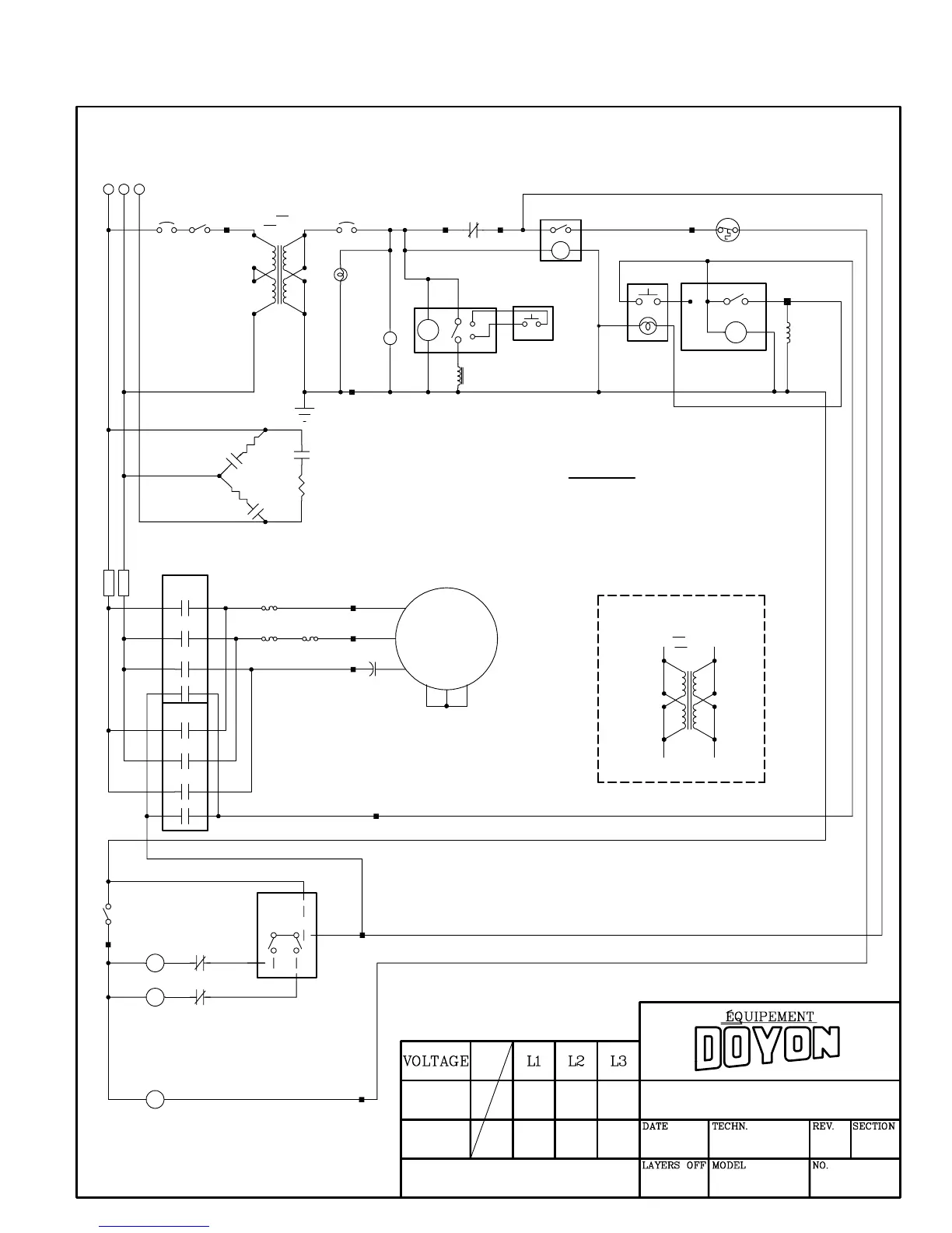
G11
5 A.
N1
MODE E
TV
B1 15
A2
18
A1
BUZZER
VL
VALVE
OVEN
C
VA
OL1
T2 T8
T3
AV
AR
T1
T4
T5
L3 T3L2 T2
L1 T1
L3 T3
L2 T2
L1 T1
L1 T1
L2 T2
L3 T3
BULB
COOLING
FAN
HL1
C1
C1
C1
X4
H1
2 A.
LIMIT
HIGH
7 8
9 10
43
1
2
AR
AV
ST
A2A1
A2A1
AR
AV
X3H3
H4 X4
X2
X1
H2
H1
120−240V>
120−240V
250VA
X3H3
H4 X4
X2
X1
H2
H1
240−480V>
250VA
120−240V
ALTERNATE TRANSFORMER
C1
VA
ST
BLOWER
L3
L2L1
OL1
95 96
SWITCH
OVEN
F2F1
C1
C1
A2
A1
ELECTRONIC
TIMER
COOKING
SWITCH
COOKING TIMER
H5CX (MODE A−1)
M
1
4
6
8
7
2
STEAM TIMER H3DE
THERMOSTAT
2.5KW
EACH
ELEMENT
3/4HP
MOTOR
OVEN
SWITCH
240 19A 18A 18A
JA4 208V 3 PHASES 60 Hz
23/08/04 M. FAUCHER 4
5
STANDARD
JA4_208
1 / 1
208 22A 21A 21A
TOTAL POWER: 8.0 Kw 60 Hz
WARNING
FOR SUPPLY SYSTEMS CONSISTING OF A DELTA
SECONDARY TRANSFORMER, MAKE SURE THAT
THE PHASE FEEDER WITH THE HIGHEST VOLTAGE
(HIGH LEG) IS CONNECTED TO L3 IN THE SUPPLY
BOX OF THIS OVEN (120 / 240V. 3 PH. SYSTEMS).

Related product manuals