EasyManua.ls Logo

Doyon JA4 - Page 66

Doyon JA4
70 pages
Print Icon
To Next Page IconTo Next Page
To Next Page IconTo Next Page
To Previous Page IconTo Previous Page
To Previous Page IconTo Previous Page
Loading...
G13
2 A.
L3L2
C1
2 A.
X1H1
H3
H4
H2 X2
X4
X3
240−480V>
120−240V
100 VA
N1
MODE E
TV
B1 15
A2
18
A1
BUZZER
VL
VALVE
OVEN
100 VA
BULB
COOLING
FAN
LIMIT
HIGH
7 8
9 10
HL1
H1
120−240V
120−240V>
H1
H2
X1
X2
X4H4
H3 X3
ALTERNATE TRANSFORMER
AV
AR
A1 A2
A1 A2
ST
AV
AR
2
1
34
L3 T3
T5
T4
T1
T3
T8T2
C1
VA
ST
VA
OL1
NL1
OL1
95 96
SWITCH
OVEN
F1
AV
AR
L2 T2
L1 T1
L3 T3
L2 T2
L1 T1
L1 T1
L2 T2
L3 T3
C1
C1
A2
A1
ELECTRONIC
TIMER
COOKING
SWITCH
COOKING TIMER
H5CX (MODE A−1)
M
1
4
6
8
7
2
STEAM TIMER H3DE
THERMOSTAT
2.5KW − 240V
2.1KW − 220V
EACH
ELEMENT
3/4HP
MOTOR
DOOR
SWITCH
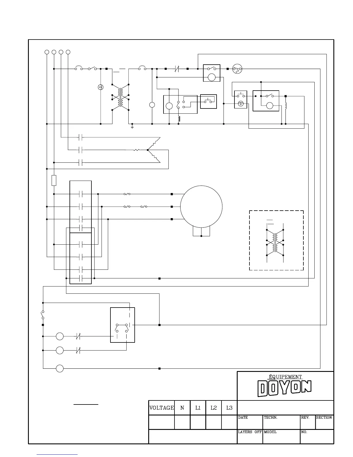
JA4 220/380V 3 PHASES 50 Hz
23/08/04 M. FAUCHER 1
NONE
STANDARD
JA41R_3
1 / 1
220 / 380 4A 13A 10A 10A
TOTAL POWER: 7.0 Kw 50 Hz
WARNING
FOR SUPPLY SYSTEMS CONSISTING OF A DELTA
SECONDARY TRANSFORMER, MAKE SURE THAT
THE PHASE FEEDER WITH THE HIGHEST VOLTAGE
(HIGH LEG) IS CONNECTED TO L3 IN THE SUPPLY
BOX OF THIS OVEN (120 / 240V. 3 PH. SYSTEMS).

Related product manuals