EasyManua.ls Logo

Draper Salara/Hardwire - Page 2

Draper Salara/Hardwire
2 pages
Print Icon
To Previous Page IconTo Previous Page
To Previous Page IconTo Previous Page
Loading...
Salara/Hardwire 110-120V Instructions by Draper
Page 2 of 2
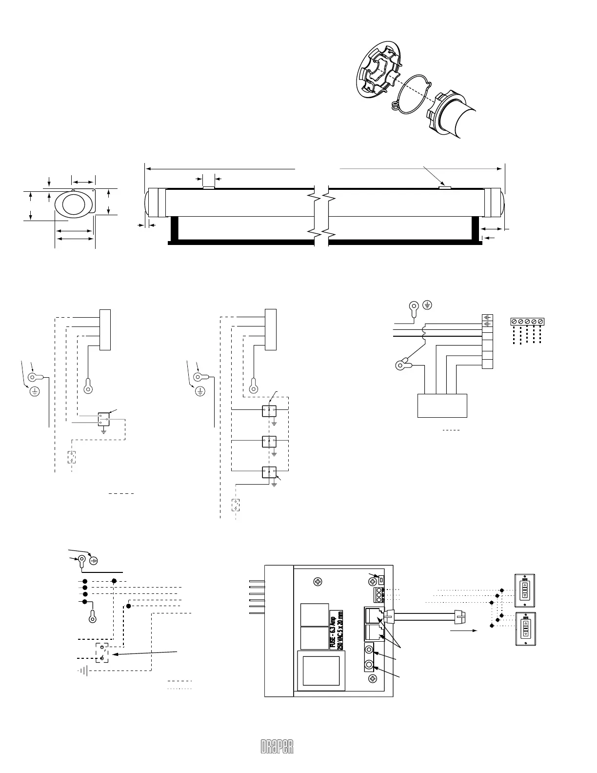
Dimensions
Wiring Diagrams
3
11
/16"
5
/16"
3
/8"
1
3
/8"
Case Length
Viewing Surface
5
1
/16"
5
7
/16"
3
1
/8"
3
7
/16"
5
/16"
3
13
/16"
Floating Mounting Brackets
Standard 110-120V Salara/Hardwire
110-120V Salara/Hardwire with Built-in IR
www
.draperinc.com (765) 987-7999
Dashed wiring by electrician
Low voltage wiring by others
RS232/485 Inputs/Outputs
Receiver
Button
Low Voltage Tr igger
3-28 VAC
IR Eye Input
3 Button Wall Switch
DOWN - Black
COM - White
UP - Red
Wall Switch
To
110-120 VAC
Line
White or Blue-Common to screen & 110 VAC Neutral
Red-to screen (directional)
Brown-to screen (directional)
Yellow-to 110 VAC-Hot
Black-to 110 VAC-Hot
Green/Yellow (Ground)
White (Common)
Red (Up)
Black (Down)
Internal Screen Wiring
Green/Yellow
(Motor Ground)
Electrically Straight
Data Cable to more
LVC-IV modules*
*A maximum of six (6)
LVC-IV modules can be
linked together.
N
L1
GND
Location of key
operated 0n-off
switch if furnished.
Green/Yellow
Chassis ground label
Screw attaching
endcap to case
Low Voltage & Wireless Control
Dashed Wiring
By Others
L N Neu Dir Dir
Green/Yellow
Black
White
Green
Green
White
Red
Black
Motor
Chassis ground label
next to screw
(1) #10 Ring
Te rminal on
each ground wire
MotorAC In
RS232 Data from Control System
RS232 Data to Control System
Signal Ground & Manual Switch Common
Manual Down Switch
Manual Up Switch
Single Station Control
Control
switch
Single gang box by others
Min. 4" x 2
1
/8" x 1
7
/8" deep
Red
Black
Blue
Location of key
operated on-off
switch if furnished
To 110-120V Line
Green/Yellow
White
Red
Black
Green
Motor
Chassis ground label
Screw attaching
endcap to case
Multiple Station Control
Dashed wiring
by electrician
Blue
Blue
Black
Red
Red
Cap off with wire
nut and tape
Black
Blue
Red
Black
Single gang box by others
Min. 4" x 2
1
/8" x 1
7
/8" deep.
3 shown. More or less equally
feasible.
Location of key
operated on-off
switch if furnished
To 110-120V Line
Green
White
Red
Black
Green/Yellow
Motor
Chassis ground label
Screw attaching
endcap to case
Dashed wiring by others
Caution: Do not remove the roller assembly from the case unless
necessary for repairs. If the roller assembly is removed, be sure
motor is fully re-seated in the bracket, and re-secure it carefully
with the motor retaining spring (see diagram at right).
Please Note: Do not wire motors in parallel.
Please Note: Do not wire motors in parallel.

Related product manuals