EasyManua.ls Logo

DSC PC5508Z

DSC PC5508Z
44 pages
To Next Page IconTo Next Page
To Next Page IconTo Next Page
To Previous Page IconTo Previous Page
To Previous Page IconTo Previous Page
Loading...
25
Français
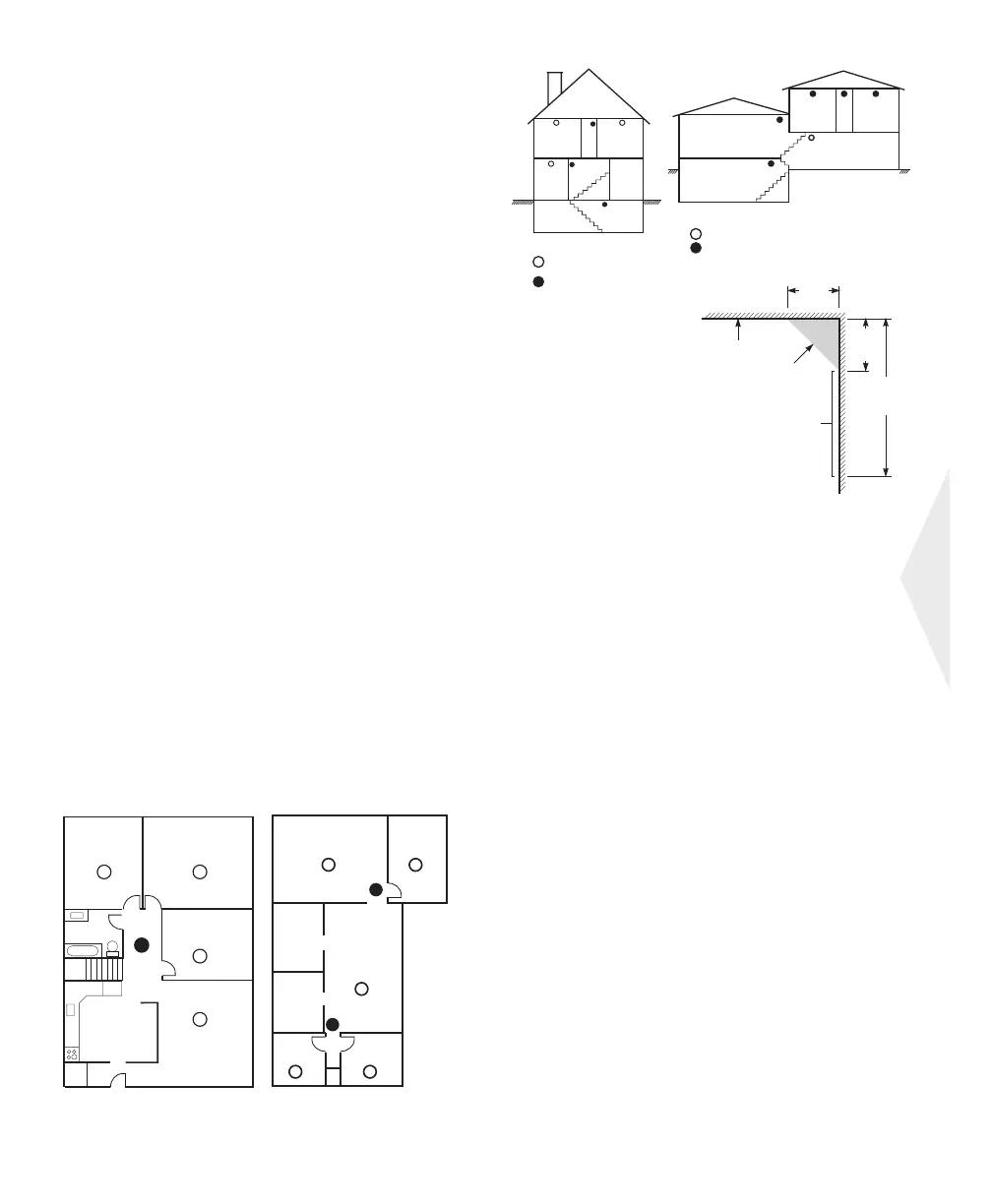
Directives pour la localisation des dé-
tecteurs de fumée
L’expérience démontre que les incendies dans les rési-
dences génèrent de la fumée en plus ou moins grande
quantité. Des tests conduits avec des incendies typiques
dans des résidences indiquent que, dans la plupart des
cas, des quantités détectables de fumée précèdent les
hausses de température. Pour ces raisons, les détecteurs
de fumée doivent être installés à l’extérieur des chambres
à coucher et sur chaque étage de la résidence.
L’information qui suit n’est qu’à titre indicatif. Lorsque vi-
ent le temps de localiser et d’installer des avertisseurs
d’incendie, il est recommandé de consulter la règlemen-
tation ainsi que le code des incendies local.
Il est recommandé d’installer un plus grand nombre
d’avertisseurs d’incendie que ce qui est requis pour une
protection minimale. Les endroits tels que le sous-sol, les
chambres à coucher (particulièrement celles des
fumeurs), la salle à dîner, la chaufferie, les pièces utili-
taires, ainsi que les couloirs devraient également être
protégés.
Sur les plafonds dégagés, les détecteurs peuvent être es-
pacés de 9.1m (30 pieds). Un espace différent peut être
requis selon la hauteur du plafond, la circulation d’air, la
présence de poutrelles, l’absence d’isolant, etc. Pour des
recommandations sur l’installation, consultez le National
Fire Alarm Code NFPA 72, CAN/ULS-S553-M86 ou tout
autre norme nationale.
N’installez pas les détecteurs de fumée sur des plafonds
pointus ou à pignon; l’espace d’air immobile dans ces em-
placements peut empêcher l’unité de détecter la fumée.
Évitez les endroits avec des courants d’air turbulents,
comme par exemple près des portes, des ventilateurs et
des fenêtres. Les mouvements d’air rapides autour de
l’unité peuvent empêcher la fumée de pénétrer à l’in-
térieur du détecteur.
N’installez pas les détecteurs où l’humidité est élevée.
N’installez pas les détecteurs dans des endroits où la tem-
pérature s’élève au-dessus de 38oC (100oF) ou descend
plus bas que 5oC (41oF).
Les détecteurs de fumée doivent toujours être installés
conformément au National Fire Alarm Code NFPA72. Les
détecteurs de fumée doivent toujours être placés con-
formément aux :
“Des détecteurs de fumée devraient être installés à l’ex-
térieur et près des chambres à coucher et à chaque étage
de la résidence, incluant le sous-sol et excluant les vides
sanitaires et les greniers non finis. Dans les constructions
neuves, un détecteur de fumée devrait également être in-
stallé dans chaque chambre à coucher.”
“Dispositions pour les résidences à demi-niveaux. L’in-
stallation de détecteurs de fumée est requise aux en-
droits indiqués dans le schéma. Les détecteurs de fumée
sont optionnels lorsqu’il n’y a pas de porte entre le salon
et la salle de jeu.”
Figure 2
Chambre
à coucher
Chambre
à coucher
Chambre
à coucher
Salle
de séjour
Cuisine
Salle à
manger
Salle de
jeux
Chambre à
coucher
Chambre à
coucher
Chambre à
coucher
Salle de
séjour
Cuisine
Figure 1
Figure 3A
Corridor
Salle de jeux
Optionnel
Maison à deux niveaux
Avertisseurs de fumée pour une protection minimum
Avertisseurs de fumée pour une meilleure protection
Chambre à
coucher
Chambre à
coucher
Salle de
séjour
Sous-sol
Figure 4
Plafond
4 po.
0,1 m
4 po.
0,1 m
min.
12 po.
0,3 m
max.
Le détecteur peut
être installé
à lintérieur de cette
zone
Emplacement
acceptable
Jamais dans
cette zone
Mur de
côté
Note: La circonférence
du détecteur ne doit
pas dépasser les
limites indiquées.
Figure 3
Chambre à
coucher
Chambre à
coucher
Sous-sol
Salle à
manger
Salle de
séjour
Avertisseurs de fumée pour
une protection minimum
Avertisseurs de fumée pour
une meilleure protection

Table of Contents

Other manuals for DSC PC5508Z

Related product manuals