EasyManua.ls Logo

Duke FWM3-13 - Page 27

Duke FWM3-13
34 pages
Print Icon
To Next Page IconTo Next Page
To Next Page IconTo Next Page
To Previous Page IconTo Previous Page
To Previous Page IconTo Previous Page
Loading...
27
Installation and Operation of Product Holding Cabinets
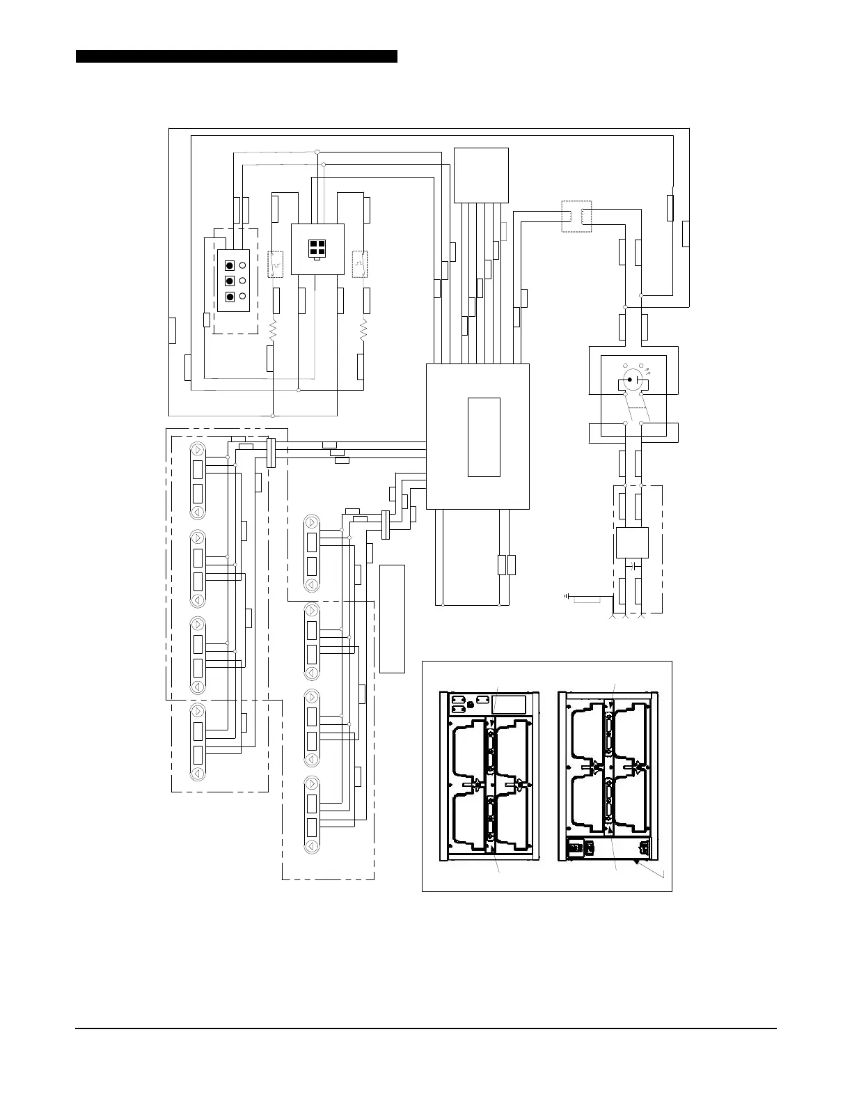
HEATER - RTD - KEYPAD
CE ONLY
LOCATIONS (ALL UNITS)
HMC-34
CONTROLLER
12VAC
+5VDC
GND
DATA
GND
+5V
DATA FRONT
4
SPS-204 KEYPAD
RTD 1
RTD 2
P1-14
P1-7
P1-8
P1-1
4
3
2
1
1
3
2
4
POWER
MODULE
#1 - #2
RTS
CTS
Tx
+5VDC
Rx
GND
GND
+5V
DATA REAR
NOTE: F1 IS ALWAYS LEFTMOST KEYPAD WHEN
VIEWING FROM FRONT OF UNIT, R1 IS ALWAYS
RIGHT MOST WHEN VIEWING FROM REAR.
FWM3-22, 23, 24
UNITS WITH REAR DISPLAYS
HEATER #1
RTD #1
HEATER #2
RTD #2
F1
F2
R2
R1
FRONT
CONTROL PANEL
REAR
12 VAC
XFMR
11 GRY
7 RED
14 GRY
10 RED
2 GRY
1 RED
4 GRY
3 RED
POWER
SWITCH
24 WHT
23 BLK
22 BRN
21 BLU
EMI
FILTER
VAC IN
GND
GRN/YEL
L2
L1
P2-14
P2-15
P2-1
P2-2
P2-3
RED
BLK
YEL
USB
HOST
UHA-7
P2-18
P2-8
P2-19
P2-9
ORN
YEL
WHT
GRN
P2-10BLK
P2-20RED
6
5
4
3
2
1
BLK
BLK
HEATER
#1
HEATER
#2
1
2
3
AUX TSTAT
AUX TSTAT
14 GRY
10 RED
8 RED
12 GRY
1 BLU
2 BLU
10 BLU
10 BLU
1 BLK
2 BLK
P2-12
P2-11
P2-13
P2-5
P2-4
P2-6
1 2 3 4
BLK
RED
WHT
R4
R3
8888 8888
8888 8888
BLK
RED
WHT
4 3 2 14 3 2 1
BLU
BLU
RED
BLK
R2
8888 8888
1 2 3 4
BLU
R1
8888 8888
1 2 3 4
BLU
1 2 3 4
F1
F2
8888 8888
8888 8888
BLK
RED
WHT
4 3 2 14 3 2 1
BLU
F3
8888 8888
1 2 3 4
BLU
F4
8888 8888
1 2 3 4
BLU
1
2
3
SPS-22
UNITS WITH
DAYPART SWITCH
YEL
RED
BLK
FWM 2-HIGH Internal Wiring Schematic

Other manuals for Duke FWM3-13

Related product manuals