EasyManua.ls Logo

Dyna-Glo EG5000DGP - Page 21

Dyna-Glo EG5000DGP
40 pages
Print Icon
To Next Page IconTo Next Page
To Next Page IconTo Next Page
To Previous Page IconTo Previous Page
To Previous Page IconTo Previous Page
Loading...
21
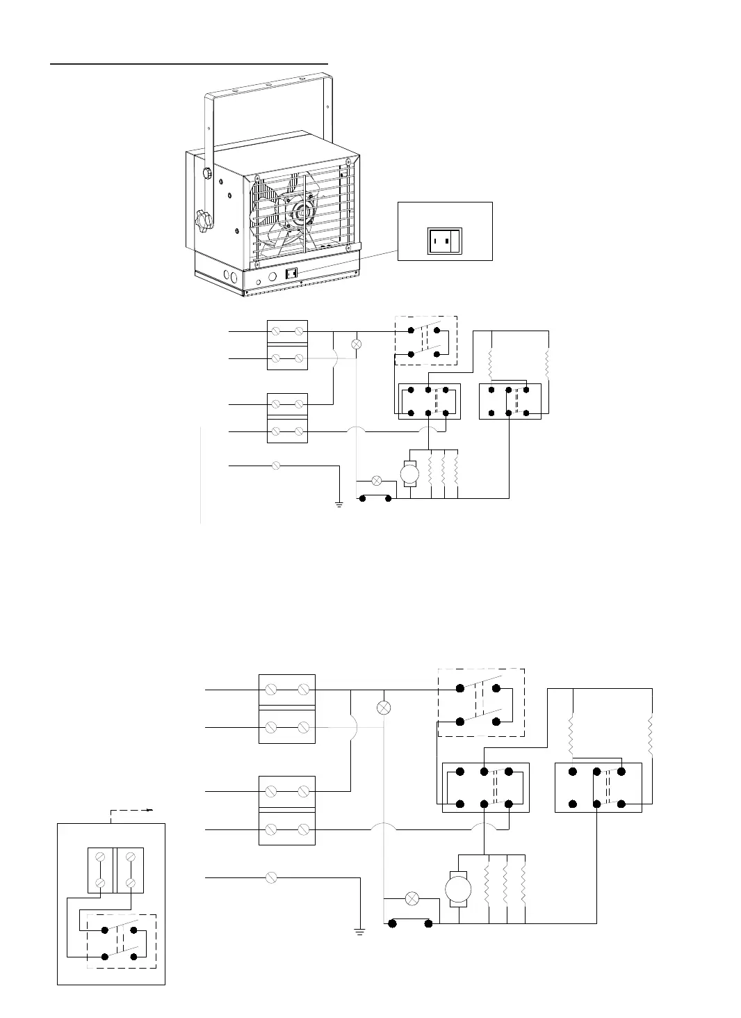
CONEXIÓN DE LA ALIMENTACIÓN
Si utiliza un control de temperatura externo (termostato externo) para
detener o activar el calefactor, siga los puntos de atención que se detallan
a continuación:
1. Asegúrese de que la perilla de control de temperatura del calefactor (perilla
del termostato) esté totalmente girada en el sentido de las agujas del reloj.
2. Conecte el cable según el diagrama de cableado a continuación.
Interruptor de selección
(termostato del calefactor, termostato externo)
Termostato del
calefactor
Termostato
externo
M
M
L1
L2
GND
1
2
Termostato
externo
240AC or 208AC
60HZ
1000Wx3
1000W
1000W
Termostato
del calefactor
Interruptor
de selección
Interruptor
Relé de protección de sobrecalentamiento
3
4
LINE
RED
LOAD
BLACK
Termostato externo
Estacion terminal
1
2
E
M
M
L1
L2
GND
1
2
Termostato
externo
240AC or 208AC
60HZ
1000Wx3
1000W
1000W
Termostato
del calefactor
Interruptor
de selección
Interruptor
Relé de protección de sobrecalentamiento
3
4
LINE
RED
LOAD
BLACK
Termostato externo
Estacion terminal
1
2
E

Other manuals for Dyna-Glo EG5000DGP

Related product manuals