EasyManua.ls Logo

EAS Electric ETH080VMA - Page 26

EAS Electric ETH080VMA
Print Icon
To Next Page IconTo Next Page
To Next Page IconTo Next Page
To Previous Page IconTo Previous Page
To Previous Page IconTo Previous Page
Loading...
23
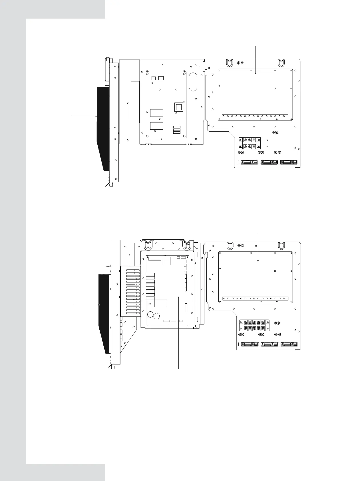
9.3.1 Placa control principal del módulo hidráulico
12/14/16kW(Monofásica)
Placa filtro (PCB C) (en la parte
trasera de la PCB B, sólo para
unidades trifásicas)
12/14/16kW(Trifásica)
Placa principal del módulo hidráulico
Placa control del sistema de
bomba de calor (PCB B)
Placa control del sistema de
bomba de calor (PCB B)
Placa principal del módulo hidráulico
Placa control
módulo inverter
(
PCB A)
Placa control
módulo inverter
(PCB A)
V.1

Table of Contents

Related product manuals