EasyManua.ls Logo

Echo SRM-360SL - Problemi Tecnici

Echo SRM-360SL
76 pages
Print Icon
To Next Page IconTo Next Page
To Next Page IconTo Next Page
To Previous Page IconTo Previous Page
To Previous Page IconTo Previous Page
Loading...
63
SRM-360SL
E
N
G
L
I
S
H
D
E
U
T
S
C
H
I
T
A
L
I
A
N
O
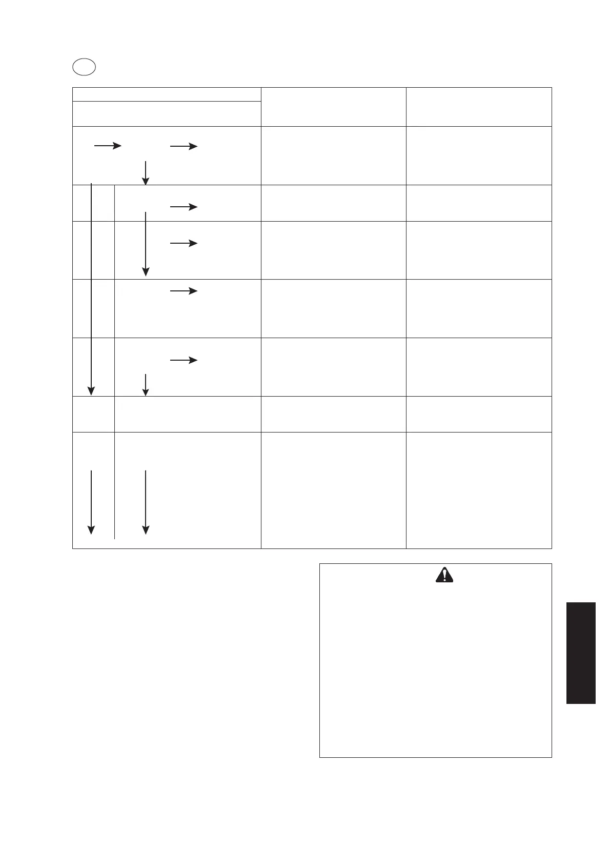
Guasto
Motore - avviamento difficile Causa Rimedio
- non si avvia
Motore Carburante Niente Filtro carburante ostruito Pulire o sostituire
in al carburante al Linea alimentazione Pulire
moto carburatore carburatore carburante otturata
Carburatore Rivolgersi al proprio rivenditore
ECHO.
Carburante al Niente Carburatore Rivolgersi al proprio rivenditore
cilindro carburante ECHO.
al cilindro
Silenziatore Miscela troppo ricca Aprire valvola a farfalla
bagnato Pulire/sostituire filtro aria
di carburante Regolare il carburatore
Rivolgersi al proprio rivenditore
ECHO.
Scintilla Nessuna Interruttore di accensione Mettere su on lo
all’estremità scintilla su off
del filo della all’estremità Problema elettrico Rivolgersi al proprio rivenditore
candela del filo della ECHO.
candela
Scintilla Nessuna Distanza elettrodi candela Regolare di 0,6 a 0,7 mm
alla scintilla sbagliata
candela alla Coperta di carbonio Pulire o sostituire
candela Sporca di carburante Pulire o sostituire
Candela difettosa Sostituire la candela
Motore Problema interno del motore Rivolgersi al proprio rivenditore
non va ECHO.
in moto
Motore Si spegne o ha poca Filtro aria sporco Pulire o sostituire
in accelerazione Filtro carburante sporco Pulire o sostituire
marcia Sfiatatoio carburante Pulire
otturato
Candela Pulire e regolare/sostituire
Carburatore Regolare
Sistema di raffreddamento Pulire
ostruite
Foro di scarico/ Pulire
silenziatore otturati
PROBLEMI TECNICI
I
AVVERTENZA PERICOLO
TUTTE LE OPERAZIONI DI MANUTENZIONE
DEL DECESPUGLIATORE CHE NON
RIGUARDANO LE PARTI ELENCATE NEL
MANUALE DELL’OPERATORE, VANNO
EFFETTUATE DA UN TECNICO SPECIALIZZATO
ED ESPERTO IN DECESPUGLIATORI.
I VAPORI DEL COMBUSTIBILE SONO
ESTREMAMENTE INFIAMMABILI E POSSONO
CAUSARE FIAMMATE O ESPLOSIONI. NON
ESAMINARE MAI LA SCINTILLA
DELL’ACCENSIONE APPOGGIANDO LA
CANDELA VICINO AL FORO DOVE VA
AVVITATA LA CANDELA SUL CILINDRO,
ALTRIMENTI POTRESTE INCORRERE IN SERI
DANNI ALLA PERSONA.

Related product manuals