EasyManua.ls Logo

Eco-Flo EFSUB10 - Page 33

Eco-Flo EFSUB10
36 pages
Print Icon
To Next Page IconTo Next Page
To Next Page IconTo Next Page
To Previous Page IconTo Previous Page
To Previous Page IconTo Previous Page
Loading...
INSTALACIÓN
33
Información importante de Puesta a tierra
Tensión peligrosa. Puede causar
choque, quemaduras o muerte.
Para reducir el riesgo de descarga eléctrica durante el
funcionamiento de la bomba, tierra y unir la bomba y el
motor de la siguiente manera:
A. Para reducir el riesgo de descarga eléctrica de las
piezas metálicas de la congregación que no la
bomba, se unen todas las partes metálicas
accesibles en la cabeza del pozo (incluyendo
tubería metálica de descarga, revestimiento del pozo
de metal, y similares). Utilice un conductor de unión
de metal por lo menos tan grande como los conduc
tores del cable de alimentación que pasa por el pozo
al motor de la bomba.
B. abrazadera o soldadura (o ambos si es necesario) de
este conductor de unión a la tierra provista con la
bomba, que será la terminal de tierra del equipo, el
conductor de puesta a tierra en la carcasa de la bomba,
o un plomo a tierra del equipo. El cable a tierra del
equipo, cuando se proporciona, será el conductor con
aislamiento verde; también puede tener uno o más
rayas amarillas.
C. Conecte a tierra la bomba, el motor y cualquier con
ducto metálico que lleva conductores del cable de
alimentación. Conéctese a tierra estas de vuelta al ser
vicio mediante la conexión de un conductor de cobre
de la bomba, el motor y el conducto al tornillo de puesta
a tierra siempre dentro de la conexión de alimentación
del compartimiento de cableado de la caja. Este con
ductor debe ser al menos tan grande como los conduc
tores del circuito que alimentan la bomba.
GUARDE ESTAS INSTRUCCIONES.
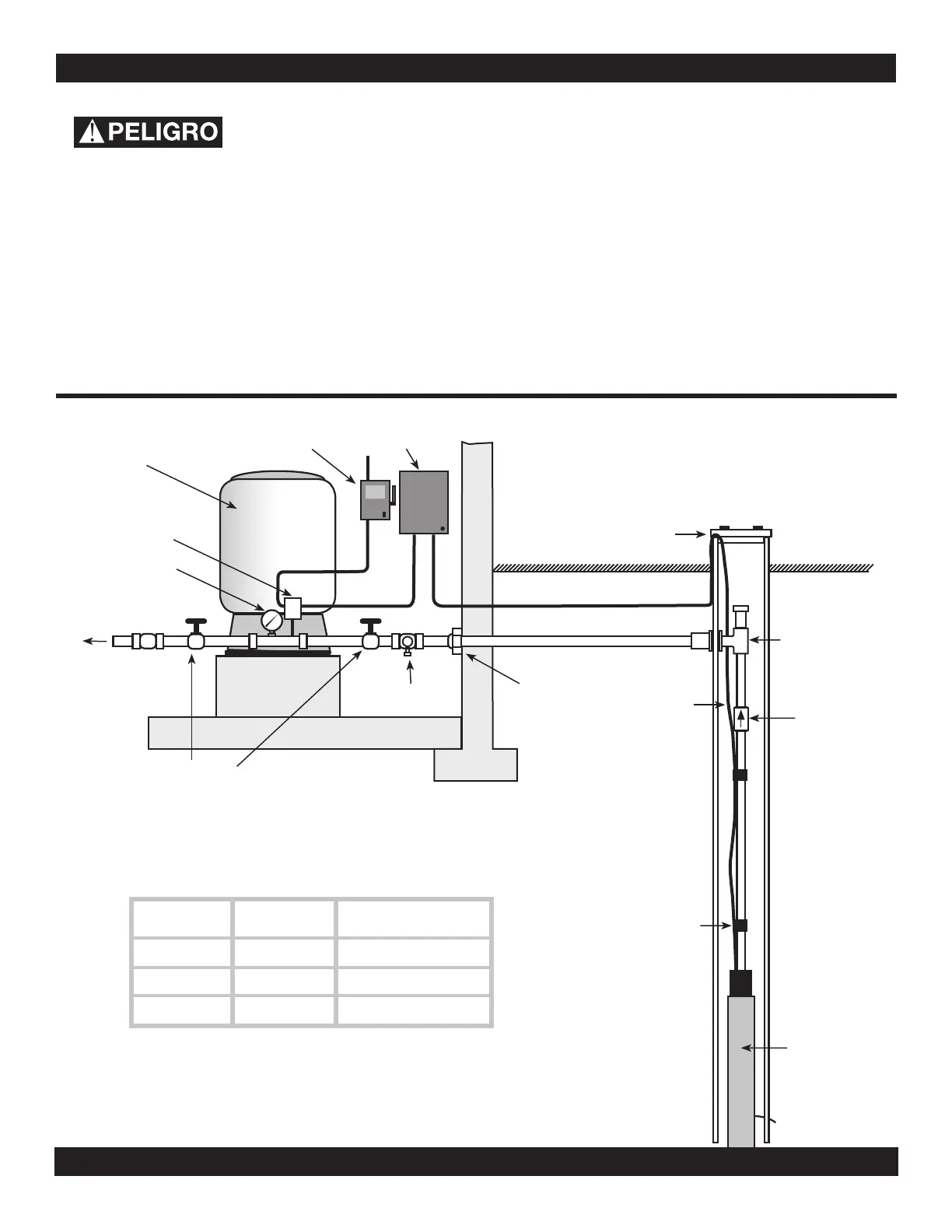
(Figura 4)
Conexiones típicas del tanque precargado
Tanque Pre-
Cargado
CORTAR IN CORTAR OFF TANQUE PRE-CARGADO
PSI (kPa) PSI (kPa) PSI (kPa)
20 (137.9) 40 (275.8) 18 (124.2)
30 (206.8) 50 (344.7) 28 (193.1)
40 (275.8) 60 (413.7) 38 (262)
A casa
válvula de compuerta
válvula de
seguridad
Unión
válvula de tapa del pozo
cable
sumergible
válvula de
retención
Bomba
adaptador sin
depresión
cable de
cinta a la
tubería
desconexión
eléctrica
control de motor
sumergible
(3 modelos de
alambre)
Interruptor de presión
Indicador de presión
Para piezas o asistencia, llame a ECO-FLO Servicio al Cliente al 1-877 326-3561

Related product manuals