EasyManua.ls Logo

Eco-Flo EFSUB10 - Electrical Grounding and Tank Setup; Electrical Grounding Requirements; Pre-Charge Tank Connections Diagram

Eco-Flo EFSUB10
36 pages
Print Icon
To Next Page IconTo Next Page
To Next Page IconTo Next Page
To Previous Page IconTo Previous Page
To Previous Page IconTo Previous Page
Loading...
For parts or assistance, call ECO-FLO Customer Service at 1-877 326-3561
INSTALLATIONS
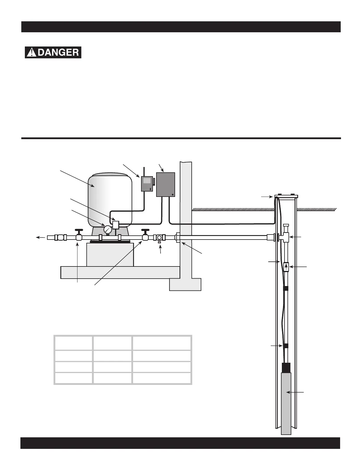
(Figure 4)
Typical Pre-Charge Tank Connections
9
Pre-charged Tank
CUT IN CUT OFF PRE-CHARGE TANK
PSI (kPa) PSI (kPa) PSI (kPa)
20 (137.9) 40 (275.8) 18 (124.2)
30 (206.8) 50 (344.7) 28 (193.1)
40 (275.8) 60 (413.7) 38 (262)
To house
Gate valve
Relief valve Union
Vent well cap
Submersible
cable
Check valve
Pump
Pitless
adaptor
Tape cable
to pipe
Electrical
disconnect
Submersible
motor control
(3 wire models)
Pressure Switch
Pressure Gauge
Important Electrical Grounding Information
Hazardous voltage. Can shock,
burn, or kill. To reduce the risk
of electrical shock during pump operation, ground and
bond the pump and motor as follows:
A. To reduce risk of electrical shock from metal parts of
the assembly other than the pump, bond together all
metal parts accessible at the well head (including
metal discharge pipe, metal well casing, and the
like). Use a metal bonding conductor at least as large
as the power cable conductors running down the
well to the pump’s motor.
B. Clamp or weld (or both if necessary) this bonding
conductor to the grounding means provided with the
pump, which will be the equipment-grounding
terminal, the grounding conductor on the pump
housing, or an equipment-grounding lead. The
equipment-grounding lead, when provided, will be
the conductor having green insulation; it may also
have one or more yellow stripes.
C. Ground the pump, motor, and any metallic conduit
that carries power cable conductors. Ground these
back to the service by connecting a copper
conductor from the pump, motor, and conduit to
the grounding screw provided within the supply-
connection box wiring compartment. This conductor
must be at least as large as the circuit conductors
supplying the pump
SAVE THESE INSTRUCTIONS.

Related product manuals