EasyManua.ls Logo

Ecoflam Multicalor 140 - Page 34

Ecoflam Multicalor 140
Print Icon
To Next Page IconTo Next Page
To Next Page IconTo Next Page
To Previous Page IconTo Previous Page
To Previous Page IconTo Previous Page
Loading...
pag.34
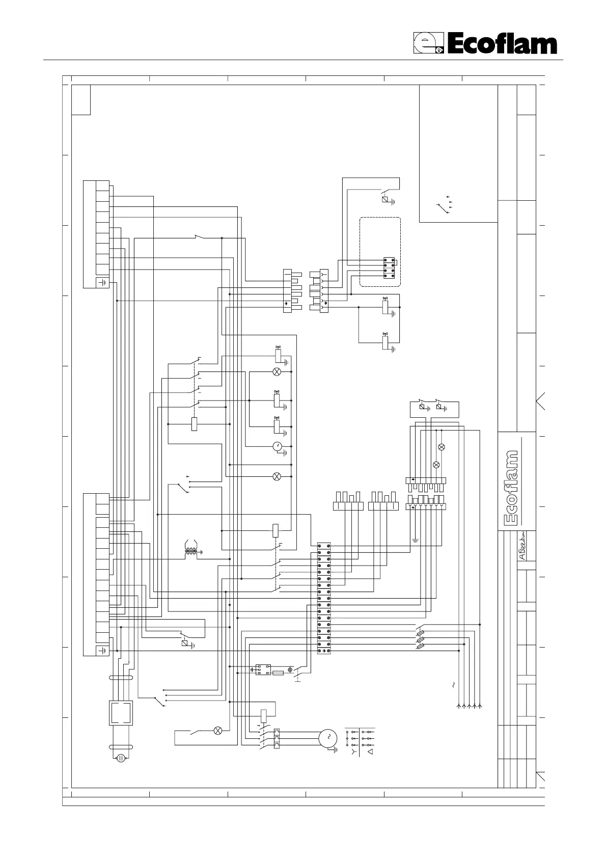
AB LB 1371 Multicalor 45 ÷ 140
+
-
BLACK
BLUE
AGQ1.1A27
RED
BROWN
BLUE
BLACK
3
M
P
T
PAGINA DI
1
M
LINE
LOAD
BLUE
YELLOW-GREEN
BLACK
BROWN
CONTROLE D'ETANCHEITI
CONTROL DE ESTANQUIDAD
PREDISPOSICION
PREVU POUR LE
PREDISPOSED
LEKAGE CONTROL
PREDISPOSIZIONE
CONTROLLO DI TENUTA
T
P
N
N
S3B4 T2 T1
S3B4 T2 T1
L1
L1
P
T
STC
P
T
STS
00 01 02 03 04 05 06 07 08 09
A
00 01 02 03 04 05 06 07 08 09
B
C
D
E
A
B
C
D
E
S.p.A.
IND.MODIFICA
SOST.DA
SOST.IL
IND.MOD.
PROPRIETA' RISERVATA DELLA DITTA ECOFLAM S.p.A.
DATA-FIRMA
DATA
FIRMA
CONTROLLATO
DESCRIZIONE MODIFICA
DISEGNATO
DATA
FIRMA
COMUNICARE A TERZI IL CONTENUTO DEL PRESENTE.A TERMINE DI LEGGE E' VIETATO RIPRODURRE O
CONTROLLO DI TENUTAAPPARECCHIATURA
UFF.TECNICO-SETTORE ELETTRICO
DENOMINAZIONE
SIST. RIVELAZ. CODICE
MOTORIDUTTORE
BEM43149
MULTICALOR 45 - 70 (gas PR-gasolio AB) LANDIS SQN 31.251A2700
LANDIS LGB 22.330A27 PREDISPOSTO UV
10-06-2004
UV
MV
UVW
KMV
RSTNO
FMV
SAL
FU
LANDIS LGB 22.330A27
31 2 754 6 1198 10 12 31 32
LANDIS SQN31.251A2700
N 1 32 54 6 78
SPA
TV
NR S T 10765 98 11
GAS (2)
GASOLIO (1)
1/2
380V
220V
YVg2YVg1YVgS HLg
HLG
FMV
95
96
MP
Z
HLBT
FMV
97
98
KA
SAgG
12
30
YVG YVGS
T2N T1L1 S3
SPGmin
L1 T1N T2 S3
SAMA
12
30
1412 13
KAx
GRAY
RED
WHITE
BLACK
BLUE
YELLOW/GREEN
BROWN
50 Hz 400V
N
PE
R
T
S
Q
HL1
HLB
B5
ORANGE
BROWN
WHITE
RED
GRAY
VIOLET
T6 T7 T8 T2T1 S3 B4
4 PIN WIELAND FOR CONNECTION
4 PIN WIELAND FOR CONNECTION
CONTROL PANEL (GAS OPERATION )
CONTROL PANEL (OIL OPERATION )
15 16
pos 0 : ARRESTO / STOP
pos 3: AUTOMATICO/AUTOMATIC/AUTOMATIQUE
pos 2: BASSA FIAMMA/LOW FLAME/1e ALLURE/BAJA LLAMA
pos 1 : ALTA FIAMMA/HIGH FLAME/2e ALLURE/ALTA LLAMA
SAMA
12
3
0
SWITCH MANUAL-AUTOMATIC
CONMUTADOR MANUAL-AUTOMATICO
COMMUTATORE MANUALE-AUTOMATICO
INTERRRUPTEUR MANUEL-AUTOMATIQUE
17-06-2004

Related product manuals