EasyManua.ls Logo

EINHELL RT-SP 260 - Page 91

EINHELL RT-SP 260
108 pages
Go to English
Print Icon
To Next Page IconTo Next Page
To Next Page IconTo Next Page
To Previous Page IconTo Previous Page
To Previous Page IconTo Previous Page
Loading...
SK
91
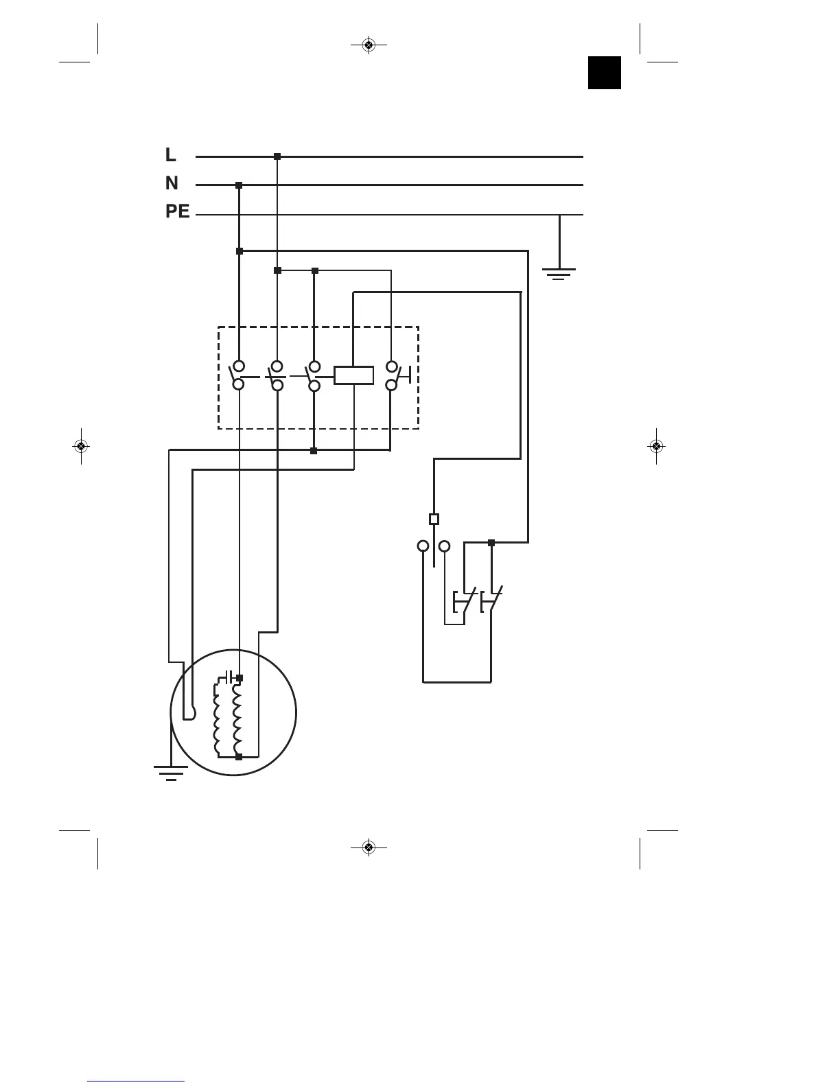
Schéma zapojenia RT-SP 260
Anleitung_RT_SP_260_260_D_SPK1__ 19.07.12 11:19 Seite 91

Table of Contents

Related product manuals